保存的视图位置使您可以在多张图纸中一致地放置类似的视图。
借助图纸集合,可以管理和组织项目中的图纸。
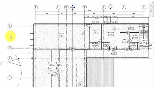
为视图创建底图以参照来自模型的其他平面视图的几何图形。
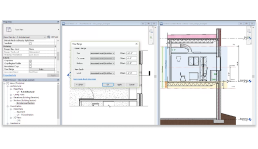
调整视图范围的平面,以正确显示模型中的图元。
创建建筑模型的立面视图。
剖面工具和详图索引工具将创建模型的其他视图,以进行细化。
在三维视图中工作时查看标高,并按需调整视图中的标高标头。
使用以下三种方法之一调整创建的透视视图:直接操纵、使用控制盘或使用“飞行模式”。
在三维正交或透视视图中工作时,可以添加并修改建筑图元以便开发并改善设计。
取消裁剪透视视图,以在一个视图中更轻松地处理模型。
应用剖面框以限制显示在视图中的几何图形。
通过创建图例视图,以在模型中传达图形约定。
排列一个或多个监视器上打开的模型的视图,以简化和支持您的工作。
使用 SteeringWheels 实时导航模型。
将放置在图纸上的视图交换为模型中另一个未放置的视图。
创建一个视图列表来检查和验证模型的视图设置。
创建视图类型,然后将模板指定给使用该类型创建的新视图。
当所有规则的运算结果必须为 true 时,请在视图过滤器中使用 AND 条件。
当一个或多个规则必须评估为 true 时,在视图过滤器中使用 OR 条件。
在过滤器中使用 OR 条件时,从图元类别中选择任何参数。
使用嵌套的规则集在视图过滤器中组合 AND 条件和 OR 条件。
将视图过滤器应用到视图以控制图元的可见性和图形。
使用对象样式和可见性以及图形替换来控制图元在模型中的显示方式。
使用裁剪区域来控制视图中可见的图元。
使用勾绘线以使您的作品具有手绘的外观。
通过增加与查看器的距离将对象淡入背景颜色中,来创建深度效果。
使用“显示隐藏线”工具和视图参数来控制模型视图中的隐藏线。
使用“位移图元”工具,以将模型表示为分解部件图。
创建明细表时,使用“明细表属性”对话框的“字段”选项卡来选择要包括的字段。
在本教程中,您将学习如何将过滤器添加到项目明细表中的字段。
在本教程中,您将学习如何根据放置在与明细表同一张图纸上的视图来过滤明细表中的图元。
创建明细表时,计算并显示量和总图元成本,或所有图元的总计成本。
创建家具明细表时,通过使用“类型”特性和“实例”特性将图像与模型图元关联来包含图像。
内嵌明细表可用于显示有关房间、空间、风管系统、管道系统或电气线路类别中构件的信息。
创建或修改明细表时,使用“明细表属性”对话框在单个明细表单元格中组合两个或多个参数。
添加注释块(注释明细表)以在模型中创建注释的常规编号图纸。
使用共享参数为图元创建关键字明细表。
创建自定义明细表,用于报告有关材质类型、数量和成本的信息。
管理配电盘明细表样板,以创建符合公司标准和本地代码的自定义配电盘明细表。
创建配电盘明细表以显示有关配电盘、连接到配电盘的线路及其相应负荷的信息。
调整图形柱明细表布局、组和标记柱,然后将明细表添加到图纸。
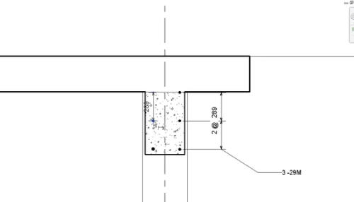
创建和修改柱信息的明细表(例如尺寸、连接和材质)。
阶段过滤器控制图元可见性,以传达有关项目每个阶段的信息。
阶段状态控制视图中模型图元的视觉表示。
显示可配置的换算尺寸标注单位以及主单位。
通过移动图元或创建替代来更改永久尺寸标注的值。
注释视图和图纸时,设置文本的格式以满足您的需要。
使用“符号”菜单、Windows® 字符映射表® 或按键字符串将特殊字符添加到文字注释。
使用“类型属性”和“文字”工具来更改尺寸标注、标记和图元文字的大小。
使用注释记号参数来注释详图构件族。
浏览注释记号文本文件样例,并为模型所需要的类别添加条目。
在模型中修改图元标记中显示的信息类型。
使用单个注释标记钢筋集或单个钢筋。
使用“重复详图构件”工具在模型中创建并放置多个图元实例。
基于线的详图构件让您可以选择基于线性的详图图元的起点和终点。
使用三维详图在模型中显示图元。
在模型中创建视图的副本来显示不同类型的信息。
了解如何使用文件来将系统族和二维绘图视图导入到模型中。
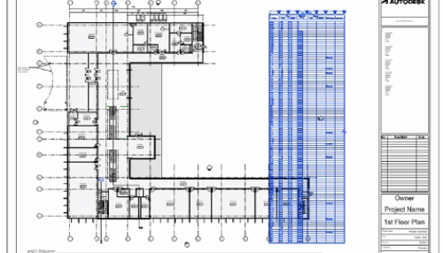
创建图纸,并在图纸上添加和定位视图。
使用导向轴网以在不同图纸中将视图对齐到相同位置。
使用族编辑器来创建带标签和修订表的自定义标题栏布局。
修改视图标题和参数以显示自定义的项目信息。
使用“修改明细表/数量”选项卡,以修改明细表的外观及其显示的信息。
使用图纸列表来安排项目中的图纸,然后将列表中的图纸预填充为占位符。
创建自定义编号方案以跟踪不同的修订序列。
使用修订工作流来跟踪模型中的更改。
是否选择对每个项目或每个图纸的模型修订进行编号,将会影响修订云线标记的编号。
使用修订云线注释以标记已修订的图形部分。
使用 IES 文件,定义 Revit 模型中光源的强度和样式。
基于模型中房间的参数将颜色方案添加到平面视图或剖面视图。
使用“渲染”工具,可在模型中设置并调整人造灯光。
创建并编辑漫游动画,以向团队成员或客户展示模型。
要向客户或团队成员展示模型,请将漫游输出为视频(AVI 文件)或一系列图像。
自定义 DWG 文件的导出选项,以与使用不同软件类型的团队成员协作。
保存自定义设置以导出模板项目中的 DWG 文件,以便可以重新使用它们。
使用“PDF 导出”将模型的视图和图纸导出为 PDF 文件。
设置打印机并修改设置,以打印视图和图纸。
将多个图元合并到一个部件中,以便单独列入明细表、标记和过滤。