依牆段或依房間建立牆

在房間中使用牆段,或是在房間邊界範圍內,建立已完成的牆。

影片:依區段/房間放置

使用牆段放置完成的牆:
  1. 按一下「建築」頁籤 「建立」面板 (牆)。
  2. 按一下「修改 | 放置牆」頁籤 「放置」面板 (依區段放置)。
  3. 在圖元區中,將滑鼠懸停在牆段上查看預覽。
  4. 使用 Tab 鍵可切換選取時要包括柱之間的區段,或忽略柱的區段。

  5. 按一下圖元區中亮顯的區段即可放置牆。

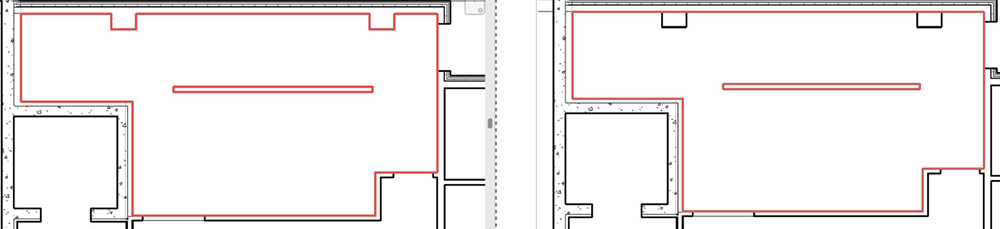
在房間中放置相同完成的牆:

  1. 按一下「建築」頁籤 「建立」面板 (牆)。
  2. 按一下「修改 | 放置牆」頁籤 「放置」面板 (依房間放置)。
  3. 在圖元區中,將滑鼠懸停在房間上查看候選牆的亮顯線條。
  4. 使用 Tab 鍵即可切換是否要將柱包含在選取範圍內。

  5. 按一下圖元區中的線條指示器即可放置牆。
註:
  1. 您只能點選由目前平面視圖的關聯樓層切割的牆。
  2. 您無法點選帷幕牆、橢圓牆、面牆、現地牆和房間邊界線作為建立牆的目標。
  3. 您可以在連結模型中使用這些工具。