「領域」性質決定如何在視圖中顯示特定領域的元素。
使用「領域」性質可控制下列行為:
「領域」性質會影響您是使用組成多個領域圖之單一模型的視圖,或連結至其他特定領域模型之模型的視圖。
您也可以使用此性質,在專案瀏覽器中組織視圖。請參閱在專案瀏覽器中組織視圖。
若要設定某視圖的「領域」性質,請在專案瀏覽器中選取視圖名稱,或開啟該視圖。在「性質」選項板中,「領域」性質會列示於「圖形」區段中。請從清單中選取值。
下面的範例是根據一個以下「樓層 1」剖面平面圖的模型。於此剖面平面圖中,綠色箭頭表示相對平面視圖的整個視圖範圍。藍色箭頭表示主要視圖範圍,其延伸超過天花板至靜壓箱,且低於「樓層 1」。橙色箭頭指示視圖深度。(請參閱關於視圖範圍)。在下方的範例平面視圖中,「詳細等級」設定為「細緻」,使得機械、電氣和配管元素會顯示更完整以達說明目的。

如有需要可下載模型,更清楚瞭解「領域」性質如何影響視圖:view_discipline_example.rvt
當您根據既有視圖建立視圖,新視圖會繼承原始視圖的領域。此規則適用於圖說視圖、剖面視圖、立面視圖和重複視圖。
例如,假設您開啟結構平面視圖 (其「領域」性質設定為「結構」的平面視圖),並使用「剖面」工具建立平面視圖的剖面。新剖面視圖的「領域」性質也會設定為「結構」。
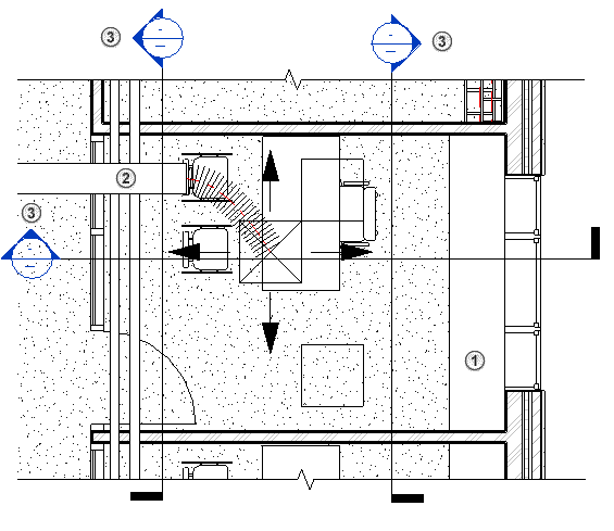
視圖標籤 (用來指出剖面圖、立面圖和圖說的符號) 只有在目前視圖的領域與目標視圖的領域相符時才會顯示在視圖中。請參閱下方的範例。
當「領域」性質設定為「建築」時:
例如,該視圖會顯示建築柱與結構柱,以及機械、電氣和配管元素。
範例:在下列建築樓板平面圖中:
在牆的一側,會顯示電纜架。在牆的另一側,建築保護層會遮住電纜架。
其「領域」性質設定為「建築」的剖面視圖會顯示標籤。此平面圖不會為指定為其他領域的視圖顯示標籤。
當「領域」性質設定為「結構」時:
例如,該視圖會顯示建築柱與結構柱,以及機械、電氣和配管元素。
範例:在下列結構平面視圖中:
不會顯示非結構牆。(與上面顯示的建築平面圖相比)。
其「領域」性質設定為「結構」的剖面視圖會顯示標籤。此平面圖不會為指定為其他領域的視圖顯示標籤。
顯示隱藏線,以展示樓板下的結構構架元素,因為該平面的視圖範圍延伸到「樓層 1」下。

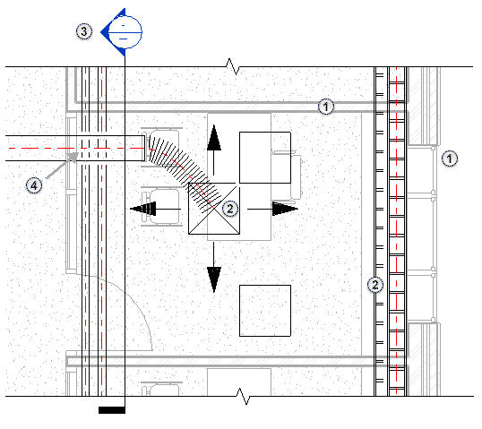
當「領域」性質設定為「機械」、「電氣」或「衛工」時:
範例:在下列機械平面視圖中:
建築與結構元素 (牆、門、窗、家具) 會根據視圖範圍以半色調顯示。天花板元素不會顯示於視圖中。
機械、電氣和配管元素會依「物件型式」所定義顯示。這些元素覆疊其他元素,而不管其在模型中的實際垂直位置。
其「領域」性質設定為「機械」的剖面視圖會顯示標籤。此平面圖不會為指定為其他領域的視圖顯示標籤。
在視圖中顯示之機械、電氣和配管元素的隱藏線。

當「領域」性質設定為「協調」時:
例如,該視圖會顯示建築柱與結構柱,以及機械、電氣和配管元素。
無論切割平面是否相交,視圖範圍內的某些機械、電氣和配管元素都會顯示。
此外,在切割平面上方的機械、電氣和配管元素會繪製於其他元素之上。在這些元素之中,其繪製順序是由視圖樓層的相對高度加以定義。當這些元素產生於切割平面之下時,則會依其與切割平面的距離做為繪製順序。
範例:在下列協調平面視圖中:
所有領域的元素會根據視圖範圍在視圖中顯示。
根據上述規則,機械、電氣和配管元素會覆蓋在其他元素進行顯示。
所有領域的剖面視圖都會顯示標籤。
