使用儲存的視圖位置,可讓您在多張圖紙上以同樣方式放置相似視圖。
使用圖紙集合可讓您管理和組織專案中的圖紙。
建立視圖的參考底圖,參考來自模型其他平面視圖的幾何圖形。
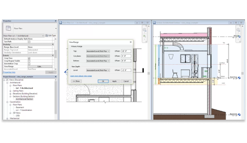
調整視圖範圍的平面,以便正確顯示模型中的元素。
建立建築模型的立面視圖。
剖面和圖說工具會建立模型的額外視圖,用於提供詳細說明。
在 3D 視圖中作業時,請查看樓層,然後視需要在視圖中調整樓層標頭。
建立透視視圖後,請使用以下三種方法調整透視視圖:直接操控、使用 SteeringWheel 或使用「飛行模式」。
當您在 3D 正投影視圖或透視視圖中處理時,您可以加入和修改建築元素以開發和細化設計。
不剪裁透視視圖,可以更輕鬆地在一個視圖中使用模型。
套用剖面框,限制視圖中顯示的幾何圖形。
建立圖例視圖來模型中的傳達圖形慣例。
在一個或多個顯示器上排列開啟模型的視圖可簡化並支援您的工作。
使用 SteeringWheels 即時導覽模型。
將放置在某個圖紙上的視圖,置換為模型中另一個未放置的視圖。
建立視圖清單來檢查和驗證模型視圖的設定。
建立視圖類型,並對使用類型建立的新視圖指定樣板。
當所有規則都必須評估為真時,請在視圖篩選中使用 AND 條件。
當一或多個規則必須評估為真時,請在視圖篩選中使用 OR 條件。
在篩選中使用 OR 條件時,從元素品類中選取任何參數。
使用巢狀規則集可在視圖篩選中合併 AND 條件和 OR 條件。
對視圖套用視圖篩選,控制元素的可見性與圖形。
使用物件型式,以及可見性和圖形取代,控制元素在模型中的顯示方式。
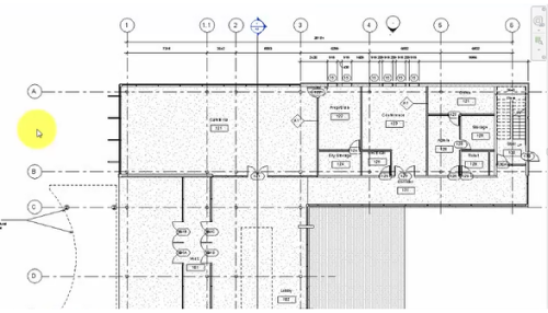
裁剪範圍可用來控制在視圖中可見的元素。
使用手繪線可以讓您的作品擁有手繪的外觀。
深度效果的建立方式是隨著距觀看者的距離漸增,將物件淡入背景色。
使用「展示隱藏線」工具和視圖參數,控制模型視圖中的隱藏線。
使用「位移元素」工具,以分解的組合圖呈現模型。
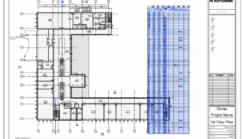
建立明細表時,使用「明細表性質」對話方塊的「欄位」頁籤選取要包括的欄位。
在此自學課程中,您將瞭解如何將篩選加入專案明細表中的欄位。
在此自學課程中,您將學習如何根據與明細表放置在同一圖紙上的視圖,篩選明細表中的元素。
建立明細表時,計算並顯示數量和元素總成本,或所有元素的總計成本。
建立家具明細表時,可以使用「類型」性質和「實體」性質將影像與模型元素產生關聯,在明細表中放入影像。
使用內嵌明細表,顯示房間、空間、風管系統、配管系統或電路品類中元件的相關資訊。
建立或修改明細表時,使用「明細表性質」對話方塊組合單一明細表儲存格中的兩個或多個參數。
在模型中加入註記圖塊 (標註明細表) 來建立一般的編號註記圖紙。
使用共用參數建立元素的關鍵資訊明細表。
建立一個報告材料類型、數量和成本等相關資訊的自訂明細表。
管理負載表配電盤樣板,建立符合您公司標準與當地規章的自訂配電盤負載表。
建立配電盤負載表可顯示配電盤、連接至配電盤的回路,以及其對應負載的相關資訊。
調整柱剖面明細表配置、對柱分組和加上標籤,然後在圖紙中加入明細表。
建立和修改柱資訊 (例如大小、連接以及材料) 的明細表。
階段篩選控制元素的可見性,傳達專案各個階段的相關資訊。
階段狀態控制視圖中模型元素的視覺表現法。
與主要單位一同顯示可規劃的替用標註單位。
透過移動元素或建立取代來變更永久標註的值。
對視圖和圖紙進行標註時,格式化文字以滿足您的需求。
使用「符號」功能表、Windows® Character Map® 或按鍵輸入字串,在文字註釋中加入特殊字元。
使用「類型性質」和「文字」工具來變更模型、標籤和元素文字的大小。
使用工項編碼參數標註詳圖元件族群。
探索範例工項編碼文字檔,然後為模型所需的品類加入項目。
在模型中修改元素標籤中顯示的資訊類型。
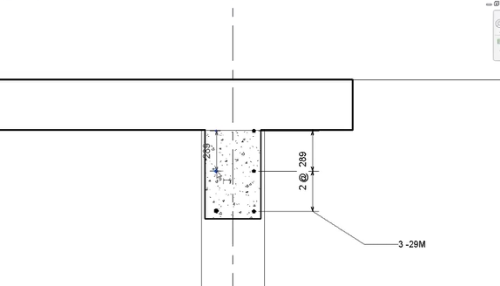
利用單一標註對一組鋼筋或個別鋼筋加上標籤。
使用「重複詳圖元件」工具在模型中建立並放置多個元素實體。
線條型詳圖元件可讓您選取線性詳圖元素的起點和終點。
使用 3D 詳圖顯示模型中的元素。
在您的模型中建立重複的視圖,以顯示不同類型的資訊。
瞭解如何使用檔案將系統族群和 2D 製圖視圖匯入模型。
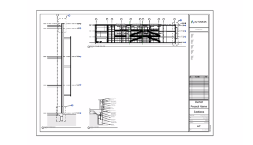
建立圖紙,並在圖紙上加入和定位視圖。
使用導引網格可讓視圖在不同圖紙中對齊相同位置。
使用族群編輯器,製作具有標示和修訂表格的自訂圖框配置。
修改視圖標題和參數,顯示自訂的專案資訊。
使用「修改明細表/數量」頁籤,修改明細表的外觀以及其顯示的資訊。
使用圖紙清單可為專案中的圖紙建立明細表,並在清單中以預留的方式預先填入圖紙。
建立自訂編號規則,以追蹤不同的修訂順序。
使用修訂工作流程來追蹤模型中的變更。
無論您選取依專案或依圖紙對模型修訂進行編號,都會影響修訂雲形標籤的編號。
使用修訂雲形註解標記已修訂的圖面。
使用 IES 檔案定義 Revit 模型中光源的強度和型式。
根據模型中的房間參數,對平面視圖或剖面視圖套用色彩計畫。
使用彩現工具設定和調整模型中的人工照明。
建立和編輯穿越動畫,向團隊成員或客戶呈現模型。
若要向客戶或團隊成員展示模型,請將穿越匯出成影片 (AVI 檔案) 或一系列影像。
自訂 DWG 檔的匯出選項,以便使用不同的軟體類型與團隊成員協同合作。
儲存匯出專案樣板之中 DWG 檔案的自訂設定,以便可以重複使用。
使用「PDF 匯出」,將模型的視圖和圖紙匯出為 PDF 檔。
設置印表機,以及修改列印視圖和圖紙的設定。
將多個建築元素合併成單一組合,可以獨立建立明細表、加上標籤和進行篩選。