存取 Twinmotion 以即時彩現目前模型。
在關聯式功能區中設定編輯造型期間如何測量高程。編輯期間,高程會顯示在游標附近,方便更輕鬆地精確編輯。
直接從視圖清單中置換圖紙上目前的視圖。
放置視圖後,使用圖紙配置工具可協助您重新組織圖紙上的視圖。
「輔助的關聯」會識別與新建分析元素重疊的實體元素,並在它們之間建立關聯,不用再進行其他動作。
使用彎曲分析嵌板來表示實體元素。您可以建立和編輯弧、橢圓或兩者的組合,以表示彎曲的實體元素或元素群組。
使用此工具可透過將分析嵌板的投影繪製到工作平面來定義分析嵌板。
使用隨選可規劃的規則,從分析模型自動建立連接的實體模型。
若要選擇鋼筋集擴展的方向,請使用右鍵功能表中的「翻轉」選項。
我們為德國、奧地利和瑞士新增了額外的結構內容。
社群構想: 您可以對以下 MEP 元素使用「使用間隙分割」指令:
在放置零件期間,Revit 會盡可能自動將零件定位到相符的接點。
Dynamo Core 2.16 提供更好的圖表導覽和管理、新的幾何圖形節點和原生的 PolyCurve 支援,以及更多功能。
使用美制測量英尺匯入/連結檔案時,現在會自動偵測單位。
座標非常大的元素會列在日誌檔中。
社群構想: 「貼上」對話方塊中加入搜尋功能。
硬體設置檢查會直接確認硬體是否符合 Revit 針對硬體加速的系統需求。
社群構想: 當房間、範圍或空間標籤移至邊界外時,會自動啟用標籤引線。
社群構想: 當您放置視圖參考時,詳圖編號和圖紙號碼會附加至其「目標視圖」參數的結尾。
社群構想: 樓板標籤中報告頂部和底部核心高程的標示現在可與建築樓板元素搭配使用。
「選取所有實體」現在可用於比舊版更多的元素/品類。
社群構想: 選取多張圖紙時,「圖紙上的修訂」的「編輯」按鈕仍然可用。
您可以手動規劃鋼構接頭所使用的 SqlLocalDB 版本。
標籤中的標示現在可以報告元素的「結構用途」參數。
社群構想: 若要節省時間並僅發佈所需的內容,您可以只發佈主體模型而不發佈連結。
與協同合作者共用部分模型,讓他們無需存取整個模型即可完成其工作。
控制視圖和圖紙在 PDF 匯出和列印集中的順序。
社群構想: 您現在可以在 3D 視圖中使用「測量」工具。在兩個選取的點或沿一條鏈選取的點之間測量。
不同區域做了許多變更以提昇效能。
控制您的分析模型,並在任何結構實體模型幾何圖形環境中精確建立分析模型。
使用隨選可規劃的規則自動建立連接的分析模型。
使用以資源庫為基礎的接頭設計自動化,可更快地為您的設計構想建模,同時嵌入結構工程和製造規則以減少重複工作。
從來源主體將造型驅動的鋼筋複製到目標主體並配合目標主體。鋼筋可透過符合鋼筋約束來調整。
電氣工程師可以估算建築電力需求並定義初期概念配電系統,無需建立實體電氣模型元素,因此只需最少的塑型,即可進行概念分析和初始設備大小調整。
社群構想: 為提高生產力,以下 MEP 元素在拆除後仍會保持連接並指定到其系統:管、風管、電管、電纜架、電線,以及製造零件。
Fabrication Data Manager (FDM) 是一個雲端托管服務,可讓協同合作者共用、管理和建置 MEP 製造內容,以提供給 Revit 使用者。
使用 FormIt 和 Revit 之間新連結的工作流程,探索並重複進行設計。
我們做了多項改進,以支援連結/匯入 CAD 檔案。
「明細表」工具現在支援依圖紙篩選的功能。
社群構想: 您可以使用相同標籤為多個元素加上標籤。在放置標籤期間使用「加入/移除主體」選項,或在既有標籤加入其他主體 (引線)。
新增一個控制項,以提升視圖中的導覽效能。
當您放置以工作平面為基礎的族群中的元素時,上次使用的選項會儲存成預設放置選項。
社群構想: 在 3D 視圖中為所有位移的元素加上標籤。
從巢狀和共用族群中選取元素時,會自動顯示暫時標註。
社群構想: 在 2D 視圖中位移元素。
等高線標示從任何方向都能「保持容易閱讀」。
可讓您更輕鬆地控制視圖中的時間和人工照明等選項。
可標記的品類清單已展開,可協助您更完整地記錄您的設計。
專案瀏覽器圖示指出視圖是否在圖紙上。
新功能可讓您更輕鬆地控制造型編輯樓板上的摺線和分割線。使用自動產生的摺線和分割線來表示模型中的樓板狀況。
根據國家的鋼構接頭標準,使用現成的標準化接頭資源庫,自動放置鋼構接頭。
根據 AISC 第 15 版加入鋼構造型表格。
相對於鋼筋端點旋轉續接器,以精確塑型並避免衝突。
社群構想: 您現在可以讓鋼筋位移,讓文件更容易閱讀和理解。
社群構想: 您可以使用相同標籤為多個鋼筋元素加上標籤。在放置標籤期間使用「加入/移除主體」選項,或在既有標籤加入其他主體 (引線)。
使用 Autodesk Docs 或 Autodesk Construction Cloud 檢視器輕鬆發佈和開啟 3D 鋼筋視圖,以協調、檢查和共用 3D 鋼筋詳細資料或模型視圖。
如果 3D 視圖的詳細等級設定為「細緻」,則鋼筋會以實體顯示。
檢查並報告專案中混凝土元素的混凝土保護層指定,以提供高品質的模型和文件。
社群構想: 在塑型元素時,避免與連結模型中的鋼筋衝突。
您現在可以將「結構用途」值變更為非支承,以建立定義和分隔空間且不支撐垂直負載 (除自身重量外) 的結構牆。
從來源主體將自由造型鋼筋複製到目標主體並配合目標主體。鋼筋可透過符合鋼筋約束來調整。
您可以使用圖元區控制項來變更製造風管和管的高程,以及翻轉配件。
社群構想: 機械控制裝置和衛工設備的新 MEP 品類,為視圖和圖紙中的元素可見性和外觀提供更強大的控制能力。
社群構想: 若要提高生產力,在族群編輯器中工作時,您可以在面或工作平面上變更 MEP 接點的主體。
Dynamo 播放器使用者介面變得現代化,並有多項令人興奮的使用性改進。
Revit 2023 納入 Revit 中的衍生式設計的最新更新,包括改進研究的建立、Dynamo 中的衍生式設計工具有新選項,以及使用 Dynamo 播放器有一致的體驗。
「參數服務」可讓您使用 Autodesk Construction Cloud 管理自己的參數資源庫。
「族群」、「類型」、「族群與類型」等參數可用於明細表的條件格式。
啟用四個既有品類,能在視圖中切割。
如果使用關鍵資訊明細表對房間與面積指定參數值,移除關鍵資訊後會保留值。
社群構想: 加入一個新功能區按鈕和一個鍵盤快速鍵,讓您能夠使用「點選平面」選項快速設定視圖的工作平面。
元素和類型預設會包括控制元素匯出對映的 IFC 參數。使用「匯出對映」對話方塊,可變更用來匯出的 IFC 圖元和預先定義的類型。
選取視圖參考時,您可以搜尋清單是否有某個特定視圖。
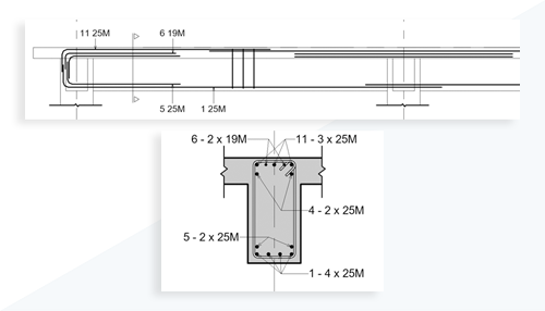
使用最新造型代碼來強化您的混凝土結構。
社群構想: 為了提高生產力,「電氣設備」品類中加入「回路編號」性質。
社群構想: 為了在建立方向族群時提高生產力,現在每個視圖中一般標註的方向都是一致的。
社群構想: 您可以設定高程基準點,高程標籤將從該點報告其值。
社群構想: 更新了 MEP 元素的高程性質並加入了新性質,以改善設計元素和製造元素的一致性。
改進能源分析模型的準確度、精確度和效能。
為了提高能源分析模型的精確度與可靠度,現在為帷幕牆建立了一個大開口表面。
使用 Revit 首頁放棄雲端工作共用模型中的元素,而不開啟模型。
社群構想: 當您使用 Revit 首頁開啟或還原舊版雲端模型時,會保留較新版本。
現在可以直接在 3D 族群中建立填滿區域,而不是匯入詳圖項目。
使用視圖篩選的增強功能,可以更快速建立篩選,並且對視圖套用篩選。
社群構想: 複製材料時,您可以選擇複製資產或使用共用資產。
社群構想: 指定為「櫥櫃」品類的族群可以接合其幾何圖形。
材料材質和貼花現在可以使用儲存在伺服器上的影像。
模型群組和 RVT 連結包括「類型」和「實體」的「識別資料」參數。
Issues 增益集中新增了一個「Overview」面板,提供 Issues 增益集內顯示的其他 Autodesk Construction Cloud 資料。