將製圖樣式和模型樣式從模型匯出到 PAT 檔。
社群構想: 減少用於產生地形實體元素的點數。
社群構想: 使用關聯式頁籤上的放置控制項,可在造型編輯元素時控制分割線的高程。
若要讓元素在模型中以更清楚的方式顯示,請在「類型性質」對話方塊中對元素套用視覺型式。
您可以更快速地放置多鋼筋標註,並且讓標籤在指定的偏移處與標註線平行。
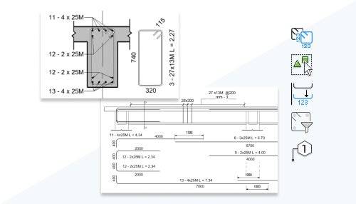
直接在 2D 或 3D 視圖的圖元區中編輯鋼筋線段長度,更輕鬆地製作鋼筋詳圖。
對所有結構構架和柱使用「分割元素」和「使用間隙分割」工具,可在需要分割的各種情況下更快速地塑型。
使用結構剖面造型參數可自訂結構構架的標籤標示。
您可以對結構分析構件使用「修剪」和「延伸」工具,以獲得更有效率的塑型體驗。
您可以對結構分析構件使用「分割元素」工具,以獲得更有效率的塑型體驗。
Dynamo 2.18 引入一組增強的圖表節點,可進行資料視覺化、改進 Python 指令碼編輯器體驗、快速調整節點資源庫大小,以及更多功能。
使用 Ctrl + 捲動可縮放專案瀏覽器的內容。搜尋後,使用方向鍵可在搜尋結果中上移/下移。
系統會記住「套用範圍規則」值設定,且預設值可自訂。
社群構想: 您可以從功能區一次變更多個文字元素的文字對齊方式。
為避免在工作共用模型中刪除視圖時遺失資料,警告訊息會提供有關如何還原工作共用模型中已刪除視圖的其他資訊。
社群構想: 建立地形元素做為實體幾何圖形。
社群構想: Revit 支援第一層的使用者介面使用深色主題,包括性質選項板、專案瀏覽器、選項列、檢視控制列和狀態列。您也可以從功能區和「選項」對話方塊,將繪圖區域 (圖元區) 主題設定為「深色」或「淺色」。
社群構想: 使用「對齊」工具,讓造型編輯過的元素上的表面樣式對齊。可以在整個表面上對齊樣式,三角形的面也可以個別對齊。
社群構想: 啟用其他品類,以允許在專案環境中進行切割。
社群構想: 專案瀏覽器頂部現在提供搜尋功能。
社群構想: 使用修訂雲形明細表,快速管理您的修訂雲形參數資訊。
社群構想: 在專案不同領域和階段的模型之間,以視覺方式進行交叉檢查。在 3D 視圖中,以視覺方式比較在 Revit 中或其他塑型工具建立的協同合作模型,以進行協調。
社群構想: 使用鎖點可輕鬆在關聯式環境中塑型、根據協調模型點在兩個參考之間測量,或更精準地定位協調模型。
選擇如何對齊鋼筋集中的鋼筋,並使鋼筋集中的鋼筋平行於在「對齊/關閉」約束中選取的平面。
社群構想: 在配筋圖面中加入彎鉤詳圖,以建立精確的鋼筋彎鉤和安裝指示。
社群構想: 透過加入鋼筋彎鉤明細表 (包括精確表示鋼筋幾何圖形的造型彎鉤詳圖) 來建立清楚的製造指示。
在元素之間建立多個關聯,可在實體和分析模型之間更充分地協調更新。
在主體物件已定義的區域上,對分析構件和嵌板施加結構負載。
使用詳細報告中產生的資訊,可更充分地管理鋼構接頭。
為了整合設計與製造工作流程,直線段製造零件加入了流量與壓降計算。這些結果僅適用於直線段。
使用剖面框、視圖篩選或「可見性/圖形取代」,在 3D 視圖中顯示元素,並在產生能源分析模型時只包括這些元素。
Insight - 技術預覽從設計的早期階段開始,為建築師提供隱含碳影響的見解。
社群構想: 若要讓雲端模型快取更易於管理,您可以在「選項」對話方塊中指定資料夾路徑。
使用新的「材質」視覺型式,套用彩現材料的材質,而不套用照明效果。
社群構想: 2D 元素在族群中的繪製順序在族群編輯器、專案中以及輸出至 PDF/列印時,看起來都相同。
選取個別協調物件並存取其性質。
使用協力廠商顏色表或使用者定義的顏色表指定顏色。
「我的見解」會傳送到 Revit 首頁,提供您瞭解軟體使用情況,以及改善體驗的建議。
社群構想: 超過 2000 個圖示已更換為新的現代化版本。
使用範例模型以瞭解功能和工作流程。更新的專案樣板可讓您更輕鬆地啟動專案和開發自己的樣板。
「Twinmotion」下拉式功能表新增了「自動同步」功能。
檢視圖表問題和相依性、加入影像輸出,並在適用於 Revit 2024 的 Dynamo 播放器中試用新的範例圖表。
您可以從分析模型資料 - 結構負載,直接在平面視圖中記錄面負載的樣式。
Revit API 文件包含擴充鋼構接頭功能的詳細指南,以及新的 API 範例。
社群構想: 現在執行日照研究時,可以用秒為單位測量較小的時間間隔。
社群構想: 您可以直接從功能區存取「太陽設定」對話方塊。
社群構想: 現在,在透視視圖中可以編輯拖放作業。
您可以按空格鍵來切換對齊分佈自由造型鋼筋的鐙筋方位。
現在,您可以調整圖紙上放置的明細表中所有列的大小,以清楚呈現列的內容,包括文字、影像或圖形。
您現在可以直接從視圖繪圖區域的右鍵功能表開啟圖紙。
從專案瀏覽器拖曳多個視圖和明細表,或從「選取視圖」對話方塊中選取多個項目,可以同時將多個視圖和明細表放置在一張圖紙上。
增強 21 個對話方塊,使用它們時可重調大小。
專案參數在類型性質和實體性質對話方塊中依字母順序排序。
設定範圍框放置後的高度。
您可以為每個分析負載指定負載分類,並為電氣分析元件套用需求率。
當您要從需求負載計算中排除非重合負載時,請加入負載集並設定「備用數量」。
社群構想: MEP 製造細部設計員可以對模型中的個別風管系統加入加固件。
為了整合設計和製造工作流程,設計風管系統可以使用以網路為基礎的流量與壓降計算。
社群構想: 「空調風口」品類現在可以顯示一個使用「維持標註方位」族群參數的標註符號。