Můžete vytvořit detailní pohledy a přidat další informace k určitým součástem modelu.
Karta Pohledpanel Vytvořit (Detail)
Karta Pohledpanel Vytvořit (Řez)
Témata v této části
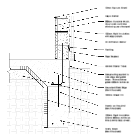
Detailní pohledy
Detailní pohled je pohled na model, který je zobrazen jako odkaz či řez v jiných pohledech. Tento typ pohledu obvykle znázorňuje model v jemnějším měřítku než nadřazený pohled.
Odkazování pohledu detailu
Když vytvoříte pohled detailu z řezu, půdorysu nebo bokorysu, můžete jej propojit s určitou oblastí modelu budovy.
Vytvoření detailního pohledu
Z půdorysu, řezu nebo bokorysu můžete vytvořit odkaz a pak, při použití geometrie modelu jako základu, přidat komponenty detailu. Při vytváření odkazu nebo detailu řezu můžete vytvořit referenci na jiný detailní pohled nebo pohled schéma/kresba v modelu.
Duplikování detailního pohledu
Při duplikování pohledu je možné určit, zda se geometrie modelu i geometrie detailu zkopírují do nového pohledu.
Duplicitní pohledy
Vytvářejte duplikáty pohledů v modelu pro účely prezentace různých druhů informací.
Uložení pohledu do externího projektu
Pohled můžete uložit do externího projektu aplikace Revit. Tato operace uloží pohled a všechny prvky (prvky modelů a prvky specifické pro pohled) viditelné v tomto pohledu do nového projektového souboru.