Videofilm: Tvorba perspektivního pohledu
V tomto videofilmu uvidíte, jak umístit kameru do perspektivního pohledu a upravit hloubku a hranice pohledu a úhel kamery.
Videofilm: Úpravy perspektivního pohledu
Perspektivní pohled lze po vytvoření upravit pomocí jedné ze tří metod: přímou manipulací, pomocí nástroje SteeringWheel nebo pomocí režimu průletu.
Videofilm: Práce v perspektivním pohledu
Při práci v 3D ortografickém nebo perspektivním pohledu můžete přidat a upravit prvky budov, a vytvořit tak a upřesnit návrh.
Video: Tvorba pohledu legendy
V tomto videofilmu uvidíte, jak je možné vytvořením pohledu legendy popsat grafické konvence v modelu.
Videofilm: Uspořádání a správa pohledů
Uspořádání pohledů otevřených modelů na jednom nebo více monitorech za účelem optimalizace správy dat a usnadnění práce.
Videofilm: Ořezání pohledu
V tomto videofilmu uvidíte, jak pomocí oblastí ořezání řídit, které prvky jsou v pohledu viditelné.
Videofilm: Práce s posunutými pohledy
V tomto videofilmu uvidíte, jak pomocí nástroje Přemístit prvky reprezentovat modely jako diagramy rozložené sestavy.
Videofilm: Výběr polí výkazu
V tomto videofilmu uvidíte výběr polí, která budou při tvorbě výkazu zahrnuta, pomocí karty Pole v dialogu Vlastnosti výkazu.
Videofilm: Filtrování výkazu podle výkresu
V tomto výukovém programu se dozvíte, jak filtrovat prvky ve výkazu na základě pohledů umístěných na stejném výkresu jako výkaz.
Videofilm: Výpočet součtů do výkazu
Při vytváření výkazu je možné vypočítat a zobrazit množství a celkové náklady na prvky nebo celkový součet nákladů na všechny prvky.
Videofilm: Tvorba vnořeného výkazu
Pomocí vnořených výkazů můžete zobrazit informace o komponentách v místnostech, prostorech, potrubních systémech, systémech trubek nebo elektrických obvodech.
Videofilm: Sloučení parametrů ve výkazu
V tomto videofilmu uvidíte sloučení dvou a více parametrů při tvorbě nebo úpravě výkazu do jedné buňky pomocí dialogu Vlastnosti výkazu.
Videofilm: Tvorba výkazu materiálu
Je možné vytvořit přizpůsobený výkaz, který bude poskytovat informace o typech materiálů, množství a nákladech.
Videofilm: Přizpůsobení šablon výkazů rozvaděčů
Pomocí šablon výkazů rozvaděčů je možné vytvářet přizpůsobené výkazy rozvaděčů, které jsou v souladu se standardy společnosti a místními předpisy.
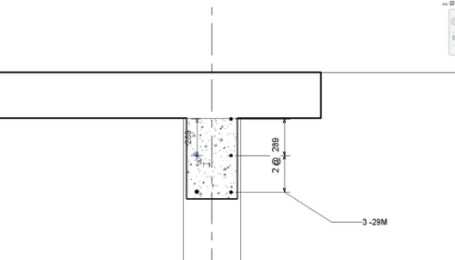
Videofilm: Úprava grafických výkazů sloupů
V tomto videofilmu uvidíte, jak upravit rozvržení grafického výkazu sloupů, jak sloupy seskupit a opatřit je popisky a jak přidat výkaz do výkresu.
Videofilm: Filtry fází
Filtry fází řídí viditelnost prvků k zjišťování informací o každé fázi projektu.
Videofilm: Stav fáze
Stav fáze řídí vizuální reprezentaci prvků modelů v pohledech.
Videofilm: Vytvoření opakovaného detailu
V tomto videofilmu uvidíte, jak pomocí nástroje Opakovaná komponenta detailu v modelu vytvářet a umísťovat více instancí prvků.
Videofilm: Export animace procházky
Chcete-li představit model klientům nebo členům týmu, exportujte procházku jako video (soubor AVI) nebo sérii obrázků.
Videofilm: Určení skrytých hran
V tomto videofilmu uvidíte řízení skrytých čar v pohledech modelu pomocí nástroje Zobrazit skryté čáry a parametrů pohledů.
Videofilm: Indikace hloubky
V tomto videofilmu uvidíte, jak vytvořit hloubkový efekt pomocí prolínání objektů s barvou pozadí se zvětšující se vzdáleností od pozorovatele.
Videofilm: Čáry náčrtů
V tomto videofilmu uvidíte, jak dát vašemu náčrtu vzhled od ruky kresleného náčrtu pomocí čar náčrtů.
Videofilm: Vytváření a dokumentace sestav
Díky sloučení několika prvků do jedné sestavy získáte možnost tuto sestavu samostatně uvádět ve výkazech, opatřovat popisky a filtrovat.