Gehen Sie wie folgt vor, um Komponenten, denen eine bestimmte Materialdefinition zugewiesen wurde, von den Außenkanten eines 2D-Schnitts auszuschließen.
Bei der Erstellung eines 2D-Schnitts können Sie eine Schnittkomponente mit der Bezeichnung "Außenkante" anzeigen. Bei den Außenkanten handelt es sich um die Vereinigung aller von der Schnittlinie durchdrungenen Objektflächen, die in einer Komponente mit einem Schraffurmuster zusammengeführt wurden. Dies ist eine häufig verwendete Ansicht eines 2D-Schnitts.
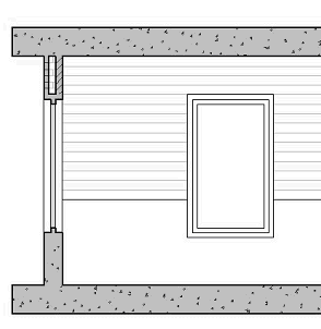
Per Vorgabe sind alle Komponenten, denen Materialdefinitionen zugewiesen wurden, in den Außenkanten enthalten. Unter Umständen sollen jedoch bestimmte Materialdefinitionen, z. B. Glas, von den Außenkanten ausgeschlossen werden.

2D-Schnitt-Außenkante mit Glas ausgeschlossen (links)

. Der Stil-Manager wird angezeigt, und die aktuelle Zeichnung ist in der Baumstruktur erweitert.
Die aktuelle Darstellung wird fett gedruckt angezeigt.