Additional Calculations for RC Beam for the French Annex NF EN 1992-1-1 / NA:2016

See the additional calculations for beam supports, using the struts-and-tie method, based on the French annex NF EN 1992-1-1 / NA:2016.

Assumptions:

The algorithm based on pictures (9.102NF), (9.101NF) from NF EN 1992-1-1/NA:2016, paragraph 9.2.1.4 (2):


Beam Result Note

  1. In Project: Building Design, click (Provided Reinforcement of RC Elements).
  2. In the Beam-note tab you can check the formulas used in these modules. Moreover, for each support, intermediate results are displayed here.

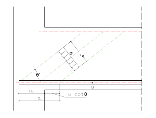
Description of variables:

VEd - shear force close to support.

aσ - width of the struts.

a - length of the base of the strut (look at the picture above).

σRd.max - the design strength for a concrete strut.

σEd = σ1 - the value of the compressive stress in the strut.

FcEd - the compression force carried by the concrete strut.

FtEd - tensile force carried by steel.

Δ As.req - additional required reinforcement.

As.prov - total provided reinforcement.

As.prov ≥ Δ As.req

To display additional reinforcement at the figure, open the Beam-diagrams tab and below the table set Switch to: reinforcement.

There will be an attempt to create an additional strut above the exiting one if the maximum compressive stress in the primary struts is exceeded (marked in the picture as A-B-C-D).



To construct this element, it is required to design additional horizontal reinforcement. Its main goal is to carry tension loads.

The angle of the new compression strut is marked as θ' and its maximum dimension is determined by the distance between points D and E.

If design strength for a primary concrete strut is exceeded, then the assumption is that this element sustains the maximum acceptable force and extra loads are carried by the newly created strut.

Its geometry needs to meet two requirements:
  1. It must allow the arrangement of the additional horizontal reinforcement.
  2. The value of the comprehensive stress in the new strut must be less than maximum.

Additional assumption: the minimum dimension of the strut must be equal to or greater than 5 cm.