Video: Luftkanal platzieren
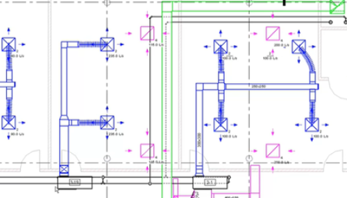
Erstellen Sie ein Luftkanalsystem durch Hinzufügen von Ausstattung, Erstellen eines logischen Systems und Hinzufügen von Luftkanälen zur Erstellung des physikalischen Systems.
Video: Erstellen von Systemen
Verbinden Sie Ausstattung manuell oder automatisch, um ein System zu erstellen, oder weisen Sie bestehenden Systemen Ausstattung zu.
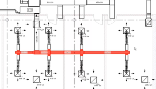
Video: Hinzufügen von Klappen für MEP-Fertigungsteile
Beim Erstellen eines MEP-Fertigungsmodells können Sie mithilfe spezieller für Klappen verfügbarer Steuerelemente im Ansichtsbereich eingebaute Regelklappen hinzufügen, entfernen oder drehen.
Video: Schließen von Lücken im Fertigungsmodell
Mithilfe der Funktionen Stutzen/Dehnen, Schnelle Verbindung oder Routing und Füllung können Sie Lücken in Fertigungsmodellen für Luftkanäle, Rohrleitungen oder elektrische Kabelführungen schließen.
Video: Erstellen eines MEP-Fertigungsmodells in Revit
Verwenden Sie die Werkzeuge in Revit, um ein Modell zu erstellen, dass die MEP-Fertigungsabsicht wiederspiegelt und das sie an Bauzeichner weitergeben können.
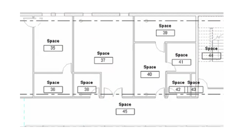
Video: Verwenden des Werkzeugs Raumbenennung
Das Werkzeug Raumbenennung weist die Namen und Nummern von Räumen aus der Architektur den für die Gebäudeleistungsanalyse verwendeten MEP-Räumen zu.