Teil 6: Platzieren von Türen

In dieser Übung laden Sie Türtypen in das Projekt und fügen anschließend dem Modell Innen- und Außentüren hinzu.

Kategorie Neue Benutzer
Erforderliche Zeit 10 Minuten
Verwendete Lernprogrammdateien GSG_06_place_doors.rvt, M_Door-Exterior-Double.rfa, M_Door-Overhead-Sectional.rfa, M_Door-Passage-Double-Flush-Dbl_Acting.rfa, M_Door-Passage-Single-Flush.rfa

Bevor Sie beginnen, laden Sie die Lernprogrammdateien GSG_06_place_doors.rvt, M_Door-Exterior-Double.rvt, M_Door-Overhead-Sectional, M_Door-Passage-Double-Flush-Dbl_Acting und M_Door-Passage-Single-Flush herunter. Laden Sie diese ZIP-Datei herunter (sofern Sie die Übungsdateien für die Lernprogramme noch nicht heruntergeladen haben).

Ziele

Video ansehen

Laden von Familien

  1. Öffnen Sie das Projekt GSG_06_place_doors.rvt.
  2. Klicken Sie auf Registerkarte Einfügen Gruppe Aus Bibliothek laden (Familie laden).
  3. Navigieren Sie im Dialogfeld Familie laden zu dem Ordner, in dem Sie die Familiendateien für die Übung gespeichert haben.
  4. Halten Sie die Strg-Taste gedrückt, und wählen Sie die folgenden Dateien aus. Klicken Sie anschließend auf Öffnen.
    • GSG_06_M_Door-Exterior-Double.rfa
    • GSG_06_M_Door-Overhead-Sectional.rfa
    • GSG_06_M_Door-Passage-Double-Flush-Dbl_Acting.rfa
    • GSG_06_M_Door-Passage-Single-Flush.rfa

Platzieren von Türen

  1. Doppelklicken Sie im Projektbrowser unter Grundrisse auf 01 - Store Floor.
  2. Klicken Sie auf Registerkarte Architektur Gruppe Erstellen (Tür).
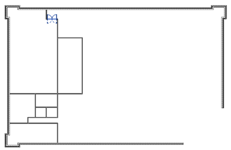
  3. Stellen Sie in der Typenwahl sicher, dass M_Tür-Durchgang-Zweiflügelig-Schwingtür ausgewählt ist.
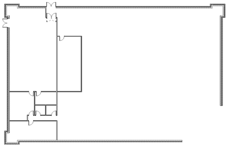
  4. Klicken Sie, um eine Tür am Eingang des Ladenraums zu platzieren, wie dargestellt.
  5. Wählen Sie in der Typenwahl M_Tür-Außen-Doppelt 1800 x 2000.
  6. Klicken Sie, um Türen in den unteren Außenwänden zu platzieren, wie dargestellt.
  7. Wählen Sie in der Typenwahl M_Tür-Durchgang-Einflügelig 900 x 200.
  8. Platzieren Sie weitere Türen wie dargestellt.
    Anmerkung: Drücken Sie zum Ändern der Öffnungsrichtung oder der Anschlagsseite beim Platzieren der Tür die Leertaste. Klicken Sie zum Ändern der Richtung nach dem Platzieren einer Tür auf die Steuerelemente zum Spiegeln.
  9. Wählen Sie in der Typenwahl M_Tür-Klapptür-Sektionaltor, und platzieren Sie die Westwand des Ladenraums.

Teil 7: Platzieren von Fenstern