LiveView Exercise: Merging Vectors

In this exercise, you update a drawing and merge new vector data with existing raster data.

Note: The Getting Started Guide sample files can be downloaded from https://www.autodesk.com/raster_design_getting_started_guide. Download and extract the sample files onto your workstation to use them in this exercise.
To merge vectors into raster data
1

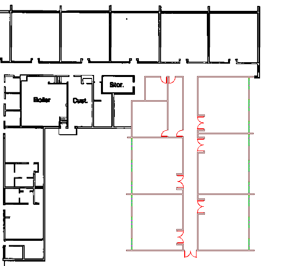
Open the LiveView_Merge.dwg sample file.

You see a drawing of a school. The white raster data indicates the original building, and the colored vector data indicates the additional classrooms.

2 On the ribbon, click Raster Tools tab Edit panel (expanded) Raster Pen to open the Raster Pen Settings dialog box.
3

Select the Red pen color, set its pen width to 1 pixel, then click OK.

With this setting, the doors will be drawn in thinner raster lines than the walls.

4

On the ribbon, click Raster Tools tab Edit panel (expanded) Merge Vector. Select the objects that make up the new classrooms by drawing a window around them and select the frame of the raster image, then right-click to end the selection.

Note: If you can't select the frame of the raster image, click Raster Tools tab Manage & View panel Toggle Frames.

Press Enter to accept the default setting of deleting the vectors after the merge. If prompted to proceed, click Yes.

The vector data is merged with the raster data.