To Create a Parts List
Produce an organized list of parts in the drawing.
What's New: 2022
| | A parts list uses the default formatting set in the parts list style associated with the active drafting standard. If you create a parts list by selecting a view of an iAssembly member, the default is the member in the view. The QTY column for the member is displayed in the parts list, if it has been specified in the style. If you create a parts list by browsing to an iAssembly, the parts list default is for the active member. |
Tip: You can copy a parts list and paste it to another drawing sheet or another drawing. You can also drag parts lists.
| | - On the ribbon, click
. - On the Parts List dialog box, select the source for the parts list:
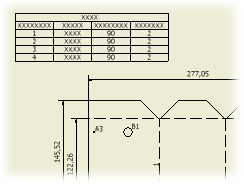
- To create a parts list for a drawing view, select the drawing view in the graphics window.
- To create a parts list from a source file, on the Parts List dialog box, click Browse and open the file.
- Select the appropriate BOM view for creating parts lists and balloons.
Note: To be available for the parts list, the Structured or the Parts Only view must be enabled in the BOM of the source model. - In the Table Wrapping box, set the wrap direction. If appropriate, select Enable Automatic Wrap, and set the maximum number of parts list rows, or number of parts list sections.
- Choose OK to close the Parts List dialog box.
- Click a location on the drawing sheet to place the parts list. You can snap the parts list to edges or corners of the sheet or the title block.
Tip: To move a parts list, click the parts list and drag to a new location. |
What is BOM delegation?
The BOM delegation message appears when you start the Parts List command and the model state of the selected view meets one of the following conditions:
- The model state is a migrated non-Master Level of Detail.
- The model state is a migrated substitute part LOD.
- The model state is a substitute part file.
The parts list for a model state created from a migrated non-Master LOD uses the Master model state Bill of Materials. The parts list for a substitute created from a migrated LOD substitute also uses the Master model state BOM. The parts list for a substitute uses the model state BOM of the source assembly.

Parts List and Instance Properties
Instance properties are properties assigned to individual component instances that are stored in the parent assembly. Unlike iProperties, instance properties don't affect the referenced component files. To learn how to display instance properties in a parts list, see To Work with Instance Properties.