Los cálculos de las vigas de gran canto (según la norma polaca de hormigón armado, además de las armaduras horizontales y verticales típicas) pueden generar zonas de armadura adicionales en las proximidades de los apoyos y en las áreas en las que se aplican cargas concentradas (por ejemplo, en un área de distribución o en un punto). Esto permite que la estructura soporte con seguridad las tensiones que se concentran en estas áreas. Para calcular esto, se siguen los pasos siguientes:
Las dimensiones de las zonas próximas al apoyo dependen de la geometría y el método de apoyo de una viga de gran canto.
Viga de gran canto apoyada por pilares con un tramo

Los valores entre paréntesis se indican para h ≥ 2l.
Viga de gran canto apoyada por pilares con varios tramos para h ≥ l/2

Los valores entre paréntesis se indican para h ≥ l.
Viga de gran canto apoyada por pilares con varios tramos para h < l/2

En el caso de las vigas de gran canto apoyadas por pilastros, estos principios se aplican como para el apoyo del pilar.
Viga de gran canto con un apoyo fijo (dimensiones de zona de armadura horizontal y vertical idénticas)

El valor entre paréntesis es para h ≥ ln, donde ln indica una distancia de separación entre apoyos.
Las cotas de una zona de armadura en la que se aplica una fuerza concentrada se determinan de la siguiente manera.

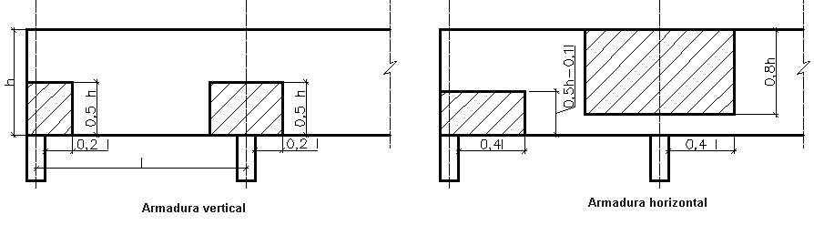
Designaciones en el dibujo:
a: anchura de la distribución de cargas (definida junto con un valor de fuerza).
b: espesor de una viga de gran canto.
Al mismo tiempo, la dimensión de esa zona debe ser superior a 1 metro.