Coloque detalles de plegado de armadura realistas o esquemáticos para los conjuntos o las armaduras individuales seleccionados en vistas de plano, en sección y de alzado, dentro o fuera de la región de recorte de la vista.
Como en el caso de las etiquetas, el recorte de anotación oculta los detalles de plegado. Sin embargo, a diferencia de otros elementos de tipo de anotación, los detalles de plegado se pueden acotar.


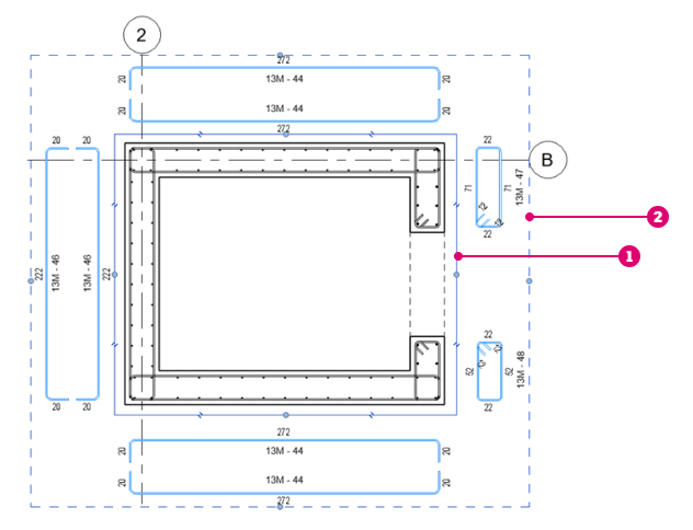
Región de recorte
Recorte de anotación
Los detalles de plegado son objetos de anotación, parte de la categoría Detalles de plegado de armadura estructural. Utilice el menú Estilos de objeto para establecer la representación por defecto de los detalles de plegado del proyecto o para modificar por categoría o por elemento a fin de cambiar el estilo visual en una vista concreta.
Puede aplicar formato al aspecto de las cotas y el texto. Para ello, modifique las propiedades del estilo de cota.