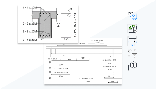
Añada detalles de plegado a los dibujos de refuerzo para crear instrucciones precisas de plegado de barras e instalación.
Puede colocar detalles de plegado en vistas de plano, en sección y de alzado dentro o fuera de la región de recorte de vista mediante las herramientas específicas de la cinta de opciones. Modifique los parámetros de los detalles de plegado de armadura para que se ajusten mejor a sus necesidades de dibujo de refuerzo.

Esta función la han sugerido los clientes en el foro de ideas y se describe en el plan de productos.
Consulte Detalles de plegado de armadura en dibujos de refuerzo.