El rango de vista es un conjunto de planos horizontales que controlan la visibilidad y la visualización de los objetos en una vista de plano.
Vídeo: Utilizar el rango de vista
Cada vista de plano tiene una propiedad denominada rango de vista, que también se conoce como rango visible. Los planos horizontales que definen el rango de vista son Superior, Plano de corte e Inferior. Los planos delimitadores superior e inferior representan las partes superior e inferior del rango de vista. El plano de corte es un plano que determina la altura a la que se visualizan cortados ciertos elementos en la vista. Estos tres planos definen el rango principal del rango de vista.
Profundidad de la vista es un plano adicional más allá del rango principal. Cambie la profundidad de la vista para que muestre los elementos debajo del plano delimitador inferior. Por defecto, la profundidad de la vista coincide con el plano delimitador inferior.
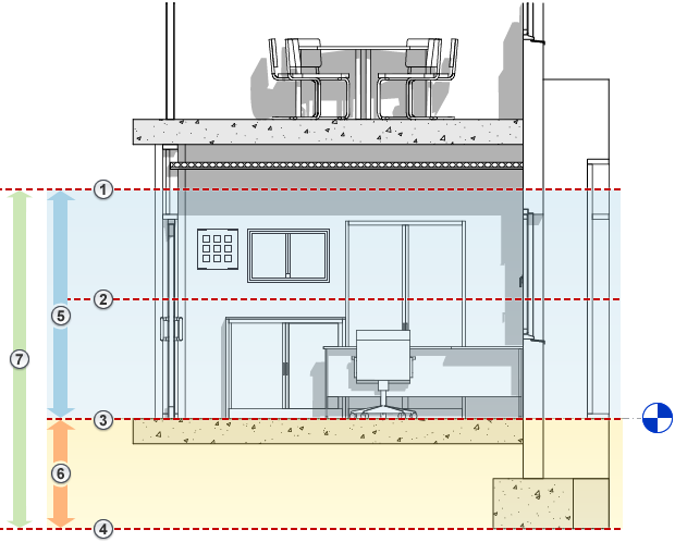
El siguiente alzado muestra el rango de vista
de una vista de plano: Superior
, Plano de corte
, Inferior
, Desfase (desde la parte inferior)
, Rango principal
y Profundidad de vista
.
La vista de plano de la derecha muestra el resultado de este rango de vista.
|
|
En una vista de plano, Revit LT utiliza las siguientes reglas para visualizar los elementos que se intersecan con el plano de corte:
Estas son algunas de las excepciones de la visualización de los elementos que intersecan con el plano de corte:
Dicha medida se calcula desde la parte superior del cuadro de delimitación hasta la parte inferior del rango de vista principal. Por ejemplo, si crea un muro cuya parte superior es de 2 m por encima del plano delimitador inferior, el muro se cortará en el plano de corte. Cuando la parte superior del muro esté a menos de 1,83 metros, todo el muro se mostrará como una proyección, incluso en los puntos en que interseca el plano de corte. Este comportamiento se da siempre que la propiedad Restricción superior del muro se define como No conectada. Si la propiedad Restricción superior del muro se especifica como Conectado, la posición del plano de corte siempre se utiliza para definir si el muro se corta o se proyecta.
Consejo: Las familias pueden incluir geometría que se interseque con el plano de corte, lo que permite que la geometría esté visible cuando se encuentre por encima del plano de corte.
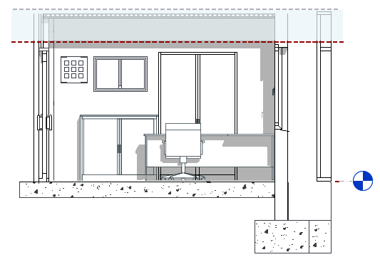
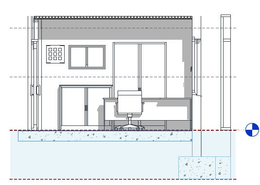
En la siguiente elevación, el resaltado de color azul indica los elementos que intersecan con el plano de corte.
La vista de plano de la derecha muestra lo siguiente:
Elementos que se dibujan mediante el grosor de línea de corte (muros, puertas y ventanas)
Elementos que se dibujan con el grosor de línea de proyección porque no se pueden cortar (muebles de obra).
|
|
En una vista de plano, Revit LT dibuja estos elementos mediante el grosor de línea de proyección de la categoría del elemento.
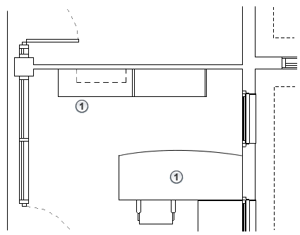
En la elevación siguiente, el resaltado de color azul indica los elementos que se encuentran por debajo del plano de corte y por encima del plano delimitador inferior.
La vista de plano de la derecha muestra lo siguiente:
Elementos que se dibujan con el grosor de línea de proyección porque no se intersecan con el plano de corte (armario, escritorio y silla).
|
|
Los elementos que se encuentran dentro de la profundidad de la vista se dibujan con el estilo de línea <Más allá>, independientemente de la categoría del elemento.
Excepciones: los suelos, los forjados estructurales, las escaleras y las rampas que están situados fuera del rango de la vista usan un rango ajustado (aproximadamente 1,22 metros) por debajo de la parte inferior del rango principal. Dentro de este rango ajustado, los elementos se dibujan mediante el grosor de línea de proyección para la categoría. Si existen fuera de este rango ajustado pero dentro de la profundidad de la vista, estos elementos se dibujan con el estilo de línea <Más allá>.
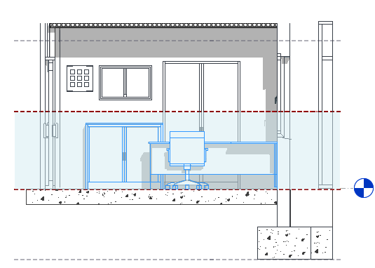
Por ejemplo, en el alzado siguiente, el resaltado de color azul indica los elementos que se encuentran por debajo del plano delimitador inferior y dentro de la profundidad de la vista.
La vista de plano de la derecha muestra lo siguiente:
Un elemento (cimentación) dentro de la profundidad de la vista que se dibuja con el estilo de línea <Más allá>.
Un elemento que se dibuja mediante el grosor de línea de proyección de su categoría porque cumple las condiciones de excepción.
|
|
Estos elementos no se muestran en una vista de plano, a menos que sus categorías sean ventanas, muebles de obra o el modelo genérico. Los elementos de estas tres categorías se dibujan con el grosor de línea de proyección como visto desde arriba.
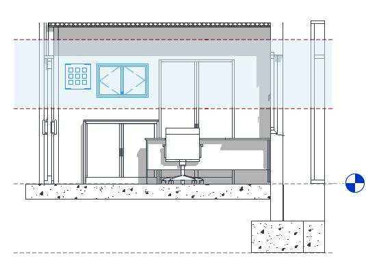
Por ejemplo, en el alzado siguiente, el resaltado de color azul indica los elementos que se encuentran entre la parte superior del rango de vista y el plano de corte.
La vista de plano de la derecha muestra lo siguiente:
Muebles de obra montados en muro que se dibujan con el grosor de línea proyectada. En este caso, el estilo de línea discontinua para líneas de proyección está definido en la familia de muebles de obra.
El aplique de muro (una categoría de iluminación) que no se dibuja en el plano porque su categoría no es una ventana, muebles de obra o el modelo genérico.
|
|
Al igual que las vistas de plano, los planos de techo reflejado tienen un rango de vista, pero con algunas diferencias.
