Utilisez les outils Insérer un fil et Liaisons multiples pour ajouter des fils entre les connecteurs.
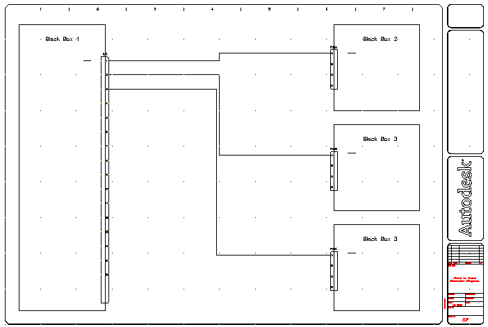
Boîte noire 1 est associée à un plus grand composant comme un boîtier d'alimentation. Boîte noire 2 à Boîte noire 4 sont des composants plus petits qui font partie du boîtier d'alimentation. Les composants doivent être connectés entre eux. Le moyen le plus facile pour les connecter est d'utiliser les outils Insérer un fil et Liaisons multiples.
Connexion des connecteurs


. Trouver
Spécifiez le début du fil ou [Type de fil/X=afficher les connexions] :
Cliquez sur PJ1 à la broche 1 de la boîte noire 1
Spécifiez l'extrémité du fil ou [Continuer] : Cliquez sur PJ2 à la broche A de la boîte noire 2.

Notez que l'outil Insérer un fil trace le fil entre les connecteurs tout en évitant les géométries existantes à l'écran.

. Trouver
Espacement horizontal : 0.75
Espacement vertical : 0.50
Point de départ : Composant (plusieurs fils)

Sélection dans la fenêtre en commençant par les points de connexion des fils
Sélectionnez les broches 5 à 7 de la boîte noire 1 (1) et cliquez avec le bouton droit de la souris
vers (T= type de fil) :
Faites glisser les fils vers la droite au-delà des trois fils que vous avez insérés,
Extrémité (Continuer/basculer) :
Faites glisser les fils vers le haut vers PJ2 de la boîte noire 2, entrez C et appuyez sur Entrée (pour continuer et verrouiller le glissement).
vers (Continuer/basculer) :
Faites glisser les fils vers la droite et connectez les broches B à D sur PJ2 (2)


. Trouver
Sélection dans la fenêtre en commençant par les points de connexion des fils :
Sélectionnez les broches 9 à 11 de la boîte noire 1 et cliquez avec le bouton droit de la souris
vers (T= type de fil) :
Faites glisser les fils vers la droite,
Extrémité (Continuer/basculer) :
Faites glisser les fils vers le haut vers PJ3 de la boîte noire 3, entrez C et appuyez sur Entrée (pour continuer et verrouiller le glissement).
vers (Continuer/basculer) :
Faites glisser les fils vers la droite et connectez les broches B à D sur PJ3

. Trouver
Sélection dans la fenêtre en commençant par les points de connexion des fils :
Sélectionnez les broches 13 à 15 de la boîte noire 1 et appuyez sur Entrée.
vers (T= type de fil) :
Faites glisser les fils vers la droite,
Extrémité (Continuer/basculer) :
Faites glisser les fils vers le bas vers PJ4 de la boîte noire 4, entrez C et appuyez sur Entrée (pour continuer et verrouiller le glissement).
vers (Continuer/basculer) :
Faites glisser les fils vers la droite et connectez les broches B à D sur PJ4
