Les options Effacer et Découper permettent de supprimer des zones sélectionnées appartenant à des images à deux tons, en gamme de gris ou en couleur. Elles affectent les images de manière permanente.
-
L'option Effacer attribue aux pixels supprimés la couleur transparente de l'image. Les zones effacées deviennent transparentes si la transparence d'arrière-plan est activée. Pour effacer les données d'une image, sur le ruban, cliquez sur l'onglet Outils Raster
groupe de fonctions Modifier, puis sélectionnez l'une des options du menu déroulant Supprimer ou entrez l'une des commandes suivantes : iremove, irubarc, irubcirc, irubcircle, irubdiag, irubline, irubpline, irubpoly ou irubrect.
-
L'option Découper supprime les données en pixels situées à l'extérieur de la zone sélectionnée. Si le contour de découpage n'est pas rectangulaire, la zone située entre le contour et le cadre d'image rectangulaire est remplie avec la couleur transparente. Pour rogner les données d'une image, sur le ruban, cliquez sur l'onglet Outils raster
groupe de fonctions Modifier, puis sélectionnez l'une des options du menu déroulant Rogner ou entrez l'une des commandes suivantes : icropcirc, icropdiag, icropline, icroppoly, or icroprect.
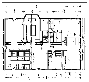
Les contours d'effacement et de découpage peuvent être constitués de plusieurs formes différentes : cercles, rectangles, lignes, arcs et polygones. Ils peuvent s'étendre sur plusieurs images. Dans l'illustration du plan de sol découpé, la taille du cadre d'image est automatiquement ajustée lorsque l'image est découpée.
|
|
|
|
|
Image du plan de sol
|
Zones effacées du plan de sol
|
Plan de sol découpé
|
Prenez en compte les points suivants :
- Lorsque deux images sont superposées et que vous effacez ou découpez l'image visible, les deux images sont modifiées. Vous pouvez verrouiller le calque sur lequel se trouve un cadre d'image afin d'interdire la modification de l'image.
- L'effacement et le découpage n'affectent pas les vecteurs contenus dans la zone d'effacement ou de découpage. Les options n'ont une incidence que sur les données raster.
- L'option Effacer permet de créer des régions transparentes ou pleines, selon l'état de la transparence d'arrière-plan dans l'image.
- Le découpage ne porte que sur les images touchées par le contour de découpage. Les images situées à l'extérieur de ce contour sont inchangées.
- Vous pouvez utiliser la commande AUTORUB pour définir l'épaisseur de ligne pour l'effacement/la découpe et pour activer/désactiver l'effacement automatique.