Description: Defines the properties of a beam element by cross-sectional dimensions.
Format: (Note: n = number of dimensions and m = number of intermediate stations)
Example:
| Field | Definition | Type | Default | ||||
|---|---|---|---|---|---|---|---|
| PID | Property identification number. | Integer > 0 | Required | ||||
| MID | Material identification number. See Remark 2. | Integer > 0 | Required | ||||
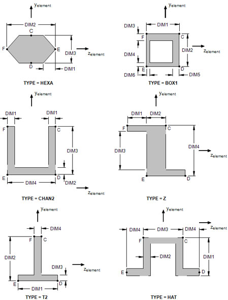
| TYPE | Cross-section type. Must be one of following character variables: BAR, BOX, BOX1, CHAN, CHAN1, CHAN2, CROSS, H, HAT, HEXA, I, I1, L, ROD, T, T1, T2, TUBE, or Z. See Remark 5. | Character | Required | ||||
| F0 | Preload. | Real or blank | 0.0 | ||||
| DIMi(A), DIMi(B) | Cross-sectional dimensions at end A and B. | Real > 0.0 | Required | ||||
| NSM(A), NSM(B) | Nonstructural mass per unit length. | Real or blank | 0.0 | ||||
| SO(j), SO(B) | Stress output request option for intermediate station j and end B.
|
Character | YES | ||||
| X(j)/XB | Distance from end A to intermediate station j in the element coordinate system divided by the length of the element. | Real or blank | 1.0 | ||||
| NSM(j) | Nonstructural mass per unit length at intermediate station j. | Real or blank | 0.0 | ||||
| DIMi(j) | Cross-section dimensions at intermediate station j. | Real > 0.0 | Required |
Remarks:
Figure 1a. Definition of Cross-Section Geometry and Stress Recovery Points
Figure 1b. Definition of Cross-Section Geometry and Stress Recovery Points
Figure 1c. Definition of Cross-Section Geometry and Stress Recovery Points
Figure 1d. Definition of Cross-Section Geometry and Stress Recovery Points