Créez des vues de détail pour ajouter plus d'informations à des parties spécifiques du modèle.
Onglet Vuegroupe de fonctions Créer (Repère)
Onglet Vuegroupe de fonctions Créer Coupe
Rubriques dans cette section
A propos des vues de détail
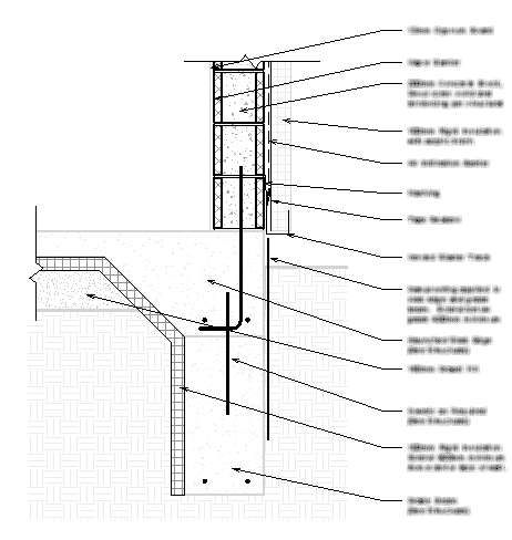
Une vue de détail est une vue du modèle qui apparaît comme un repère ou une coupe dans d'autres vues. Ce type de vue représente généralement le modèle selon une échelle plus détaillée que dans la vue parent.
A propos du référencement d'une vue de détail
Lorsque vous créez un repère de détail dans une vue en coupe, une vue en plan ou une vue d'élévation, vous pouvez lier la vue à une zone spécifique du modèle de bâtiment.
Création d'une vue de détail
Vous pouvez créer un repère à partir d'une vue d'élévation ou une vue en plan ou en coupe, puis ajouter les composants du détail en vous basant sur la géométrie du modèle. Lorsque vous créez un repère ou une coupe, vous pouvez référencer une autre vue en coupe ou de détail dans le modèle.
Duplication d'une vue de détail
Lorsque vous dupliquez une vue, vous pouvez déterminer si la géométrie du modèle et la géométrie de détail sont copiées dans la nouvelle vue.
Vidéo : Duplication de vues
Créez des copies de vues dans votre modèle pour présenter différents types d'informations.
Vues dupliquées
Créez des copies de vues dans un modèle pour présenter différents types d’informations.
Enregistrement d'une vue dans un projet externe
Vous pouvez enregistrer une vue dans un projet Revit externe. Cette opération entraîne l'enregistrement de la vue et de tous les éléments (éléments de modèle et spécifiques à la vue) visibles dans cette vue dans un nouveau fichier de projet.