Cette méthode place un espace dans des surfaces complexes où le volume est contraint depuis un niveau de base jusqu'à un niveau supérieur.
Vous pouvez utiliser cette méthode lorsque vous placez des espaces pour des surfaces telles que celles qui s'étendent sur plusieurs niveaux, celles qui possèdent un niveau en porte-à-faux ou celles qui disposent d'un lissage en tant que limite supérieure pour une partie de la surface. Dans ces cas-là, vous pouvez utiliser les lignes de séparation d'espace ou les niveaux supplémentaires pour diviser les surfaces.
Dans l'arborescence du projet, cliquez deux fois sur le plan d'étage contenant le niveau de base pour la surface qui s'étend sur plusieurs niveaux.
Ensuite, créez une vue en coupe pour vérifier les espaces verticalement au moment de leur placement.
Conseil : Les espaces ne s'affichent pas dans les vues d'élévation.
Création de vues en coupe
Vous pouvez utiliser une vue en coupe existante, mais assurez-vous que la ligne de coupe passe par la surface sur laquelle seront placés les espaces.
- Cliquez sur l'onglet Vue
groupe de fonctions Créer
(Coupe).
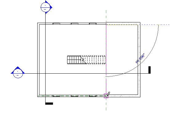
- Dans la vue de plan d'étage, dessinez deux coupes perpendiculaires, comme illustré.
Assurez-vous que la ligne de coupe passe par la surface sur laquelle vous placez l'espace. Dans le cas contraire, l'espace ne s'affichera pas dans la vue en coupe.
- Dans l'arborescence du projet, cliquez deux fois sur la nouvelle vue en coupe pour l'ouvrir.
Création de niveaux
Cette rubrique suppose que les niveaux standard sont présents dans la conception. Si ce n'est pas le cas, vous devez les créer.
- Cliquez sur Modifier.
Division de la surface à l'aide des lignes de séparation d'espace
- Cliquez sur le plan d'étage pour qu'il devienne la vue active.
- Cliquez sur l'onglet Analyser
groupe de fonctions Espaces et zones
(Séparateur d'espaces), puis dessinez une séparation d'espace pour diviser la surface par rapport aux limites supérieures.
Remarque : Les lignes de séparation d'espace sont des composants de délimitation de pièce.
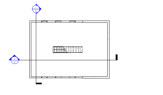
- Dans l'arborescence du projet, ouvrez les deux vues en coupe.
- Fermez toutes les vues, à l'exception des deux vues en coupe et du plan d'étage où placer l'espace, puis tapez w t pour disposer les trois vues en mosaïque.
Vous pouvez également cliquer sur l'onglet Vue
groupe de fonctions Fenêtres
(Vues en mosaïque).
Activation de la visibilité des espaces
- Cliquez sur une vue en coupe pour l'activer.
- Tapez v g.
- Dans l'onglet Model Categories de la boîte de dialogue Visibility Graphics, faites défiler jusqu'à Espaces.
- Développez Espaces, sélectionnez Intérieur et Référence (si vous souhaitez afficher des réticules de référence), puis cliquez sur OK.
- Répétez la procédure pour rendre les espaces visibles dans l'autre vue en coupe et dans la vue de plan d'étage.
Placement d'un espace
- Lorsque la vue de plan d'étage est active, cliquez sur l'onglet Analyser
groupe de fonctions Espaces et zones
(Espace).
- Dans la barre des options, effectuez les opérations suivantes :
- Pour Limite supérieure, spécifiez le niveau supérieur.
Lorsque vous spécifiez la limite supérieure pour un espace au-dessous d'un toit, indiquez la limite supérieure au niveau situé au-dessus du haut du toit, de manière à ce que l'espace s'accroche au toit. Si ce niveau n'existe pas, créez-le. Voir Placement d'espaces jusqu'au toit pour plus d'informations.
- Pour l'option Décalage, tapez 0' 0" (0.00 mm).
Ces deux options déterminent l'étendue verticale, ou hauteur, de l'espace.
Remarque : Si la limite supérieure et le décalage sont spécifiés au-delà du niveau supérieur, la limite verticale de l'espace s'accroche à un composant de délimitation de pièce, tel qu'un plafond ou un sol, même si la limite supérieure est plus haute que le composant, car lorsque l'option Surfaces et volumes est activée (paramètre par défaut), la limite verticale de l'espace s'accroche aux composants de délimitation de pièce, tels que les plafonds, les sols ou les toits. Le volume de l'espace est calculé jusqu'au composant de délimitation de pièce. L'option Surfaces et volumes se trouve dans l'onglet Architecture

le groupe de fonctions déroulant Pièce et surface

Calculs des surfaces et des volumes.
- Dans la zone Espace, vérifiez que l'option Nouveau s'active lors du placement d'un nouvel espace ou sélectionnez un espace non placé dans la liste pour procéder à son placement.
Sélectionnez les options suivantes, selon les besoins :
- Etiquette à l'insertion : place une étiquette d'espace après le placement de l'espace.
Cette option est activée par défaut. Elle permet de sélectionner le type d'étiquette à partir du sélecteur de type.
- Zone Tag Location : définit l'emplacement des étiquettes d'espace comme Horizontal, Vertical ou Modèle.
Cette option est disponible uniquement si l'option Etiquette à l'insertion est sélectionnée.
- Repère : crée une ligne de repère pour l'étiquette d'espace.
Cette option est disponible uniquement si l'option Etiquette à l'insertion est sélectionnée.
- Afficher les éléments de délimitation : met en surbrillance les éléments de délimitation de pièce dans le modèle de bâtiment de manière à les trouver immédiatement.
- Dans la vue de plan d'étage, déplacez le curseur au-dessus d'une surface du modèle de bâtiment, puis cliquez dessus pour placer un espace.
Remarque : Vous pouvez uniquement placer les espaces dans les vues de plan d'espace.
- Cliquez sur Modifier.
- Sélectionnez l'espace.
- Sous Analyse d'énergie dans la palette Propriétés, procédez à l'une des actions suivantes :
- Si l'espace sera occupé, sélectionnez Habitable.
- Si l'espace ne sera pas occupé, désactivez l'option Habitable.
- Cliquez sur OK.
Remarque : Si vous placez un espace dans une surface contenant une pièce, le paramètre Habitable est automatiquement sélectionné et définit l'espace comme étant occupé. Si la zone ne contient pas de pièce, le paramètre Habitable est automatiquement désélectionné et définit l'espace comme étant non occupé. Vous pouvez toujours redéfinir l'espace en activant ou désactivant ce paramètre. Le paramètre Habitable affecte l'
analyse des systèmes.
Vérification des espaces
- Dans les vues en coupe et de plan d'étage, vérifiez que les surfaces ombrées représentant le volume des espaces sont contraintes depuis le niveau de base jusqu'au niveau supérieur et qu'aucune surface non ombrée (en raison d'éléments tels que des cavités ou des cages) n'est présente. Cela permet un calcul du volume plus précis.
- Si l'espace n'est pas contraint correctement, vérifiez dans la vue en coupe que la limite supérieure de l'espace est spécifiée au niveau supérieur, puis redéfinissez l'espace verticalement, si nécessaire.
Vous devez également résoudre toutes les surfaces non ombrées.
Vous pouvez diviser d'autres espaces complexes à l'aide des lignes de séparation d'espace ou des niveaux, comme illustré.
Exemple de gauche : un niveau divise la surface horizontalement. La surface inférieure dispose d'une base définie en tant que Niveau 1 et d'une limite supérieure définie en tant que Niveau 2. Un deuxième espace est spécifié avec une base définie en tant que Niveau 2 et une limite supérieure définie en tant que niveau supérieur du toit.
Exemple de droite : une ligne de séparation d'espace divise la surface verticalement. La surface inférieure dispose d'une base définie en tant que Niveau 1 et d'une limite supérieure définie en tant que niveau supérieur du toit. Le deuxième espace utilise le Niveau 2 en tant que partie inférieure et le niveau supérieur du toit en tant que limite supérieure.