Vidéos : documentation et présentation de la conception
Créez, annotez et affinez la documentation du projet afin de communiquer l’intention de conception aux membres de l’équipe, consultants, clients et entrepreneurs.
Vidéo : créer une vue en perspective
Placez une caméra dans la vue en perspective et réglez la profondeur de la vue, la limite et l'angle de caméra.
Vidéo : ajuster une vue en perspective
Ajustez une vue en perspective après sa création à l'aide de l'une des trois méthodes suivantes : manipulation directe, utilisation du disque de navigation SteeringWheel ou utilisation du mode Mouvement.
Vidéo : Utilisation d'une vue en perspective
Lorsque vous travaillez dans une vue 3D orthogonale ou une vue en perspective, vous pouvez ajouter et modifier des éléments de construction pour développer et affiner la conception.
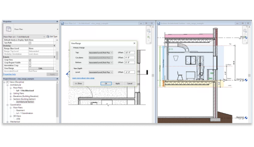
Vidéo : Cadrage d'une vue
Les zones cadrées permettent de contrôler les éléments qui sont visibles dans une vue.
Vidéo : utiliser des vues déplacées
Utilisez l'outil Déplacer les éléments pour représenter des modèles sous la forme de diagrammes d'assemblage décomposés.
Vidéo : Filtrage d’une nomenclature par feuille
Dans ce didacticiel, vous allez apprendre à filtrer des éléments dans une nomenclature en fonction des vues placées sur la même feuille que la nomenclature.
Vidéo : Calculer les totaux dans une nomenclature
Lors de la création d'une nomenclature, calculez et visualisez les montants et les coûts totaux des éléments, soit un total général de tous les éléments.
Vidéo : Création d’une nomenclature imbriquée
Utilisez les nomenclatures imbriquées pour afficher des informations sur les composants des pièces, des espaces, des systèmes de gaines, des systèmes de canalisation ou des circuits électriques.
Vidéo : combiner des paramètres dans une nomenclature
Lors de la création ou de la modification d'une nomenclature, combinez au moins deux paramètres dans une seule cellule de nomenclature à l'aide de la boîte de dialogue Propriétés de la nomenclature.
Vidéo : Créer un bloc-notes
Ajoutez un bloc-notes (nomenclature d'annotations) pour créer des feuilles numérotées génériques de notes dans un modèle.
Vidéo : Filtres des phases
Les filtres de phases gèrent la visibilité des éléments pour communiquer les informations relatives à chaque phase d'un projet.
Vidéo : état de la phase
L'état de la phase contrôle la représentation visuelle des éléments de modèle dans les vues.
Vidéo : Modification de la taille du texte
Utilisez les propriétés Type et les outils de texte pour modifier la taille du texte d'une cote, d'une étiquette ou d'un élément.
Vidéo : créer une répétition de détail
Utilisez l'outil Répétition de composant de détail pour créer et placer plusieurs occurrences d'éléments dans un modèle.
Vidéo : contrôler les lignes cachées
Utilisez l’outil Afficher les lignes cachées et les paramètres de vue pour contrôler les lignes cachées dans les vues de modèle.
Vidéo : repères de profondeur
Créez un effet de profondeur en fondant les objets dans la couleur d'arrière-plan avec l'augmentation de la distance par rapport à l'observateur.
Vidéo : Lignes d’esquisse
Utilisez des lignes d’esquisse pour donner à votre travail une apparence d’esquisse à main levée.