Per escludere i componenti degli oggetti ai quali è assegnata una definizione di materiale specifica dal contorno continuo di una sezione 2D, attenersi alla procedura indicata di seguito.
Quando si crea una sezione 2D è possibile visualizzare un componente di sezione denominato Contorno continuo. Il contorno continuo è l'unione di tutte le facce dell'oggetto tagliate dalla linea di sezione, fuse in un solo componente con un modello di tratteggio. Questa è una vista di sezione 2D usata di frequente.
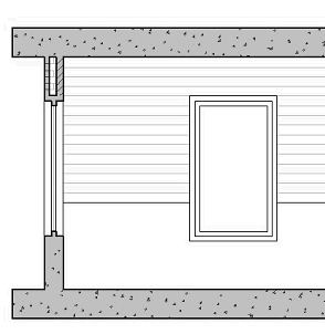
Per default, tutti i componenti con definizioni di materiale vengono inclusi nel contorno continuo. È tuttavia possibile impostare l'esclusione dal contorno continuo di alcune definizioni di materiale, ad esempio il vetro.

Contorno continuo di sezione 2D con vetro escluso (sinistra)

 .
.  
 Gestione stili verrà visualizzato con il disegno corrente espanso nella vista struttura.
La rappresentazione di visualizzazione corrente appare in grassetto.
 .
.