Spostamento rapido di un componente lungo un filo e inserimento dei componenti secondari.
Se il componente non è stato inserito nella posizione corretta, è possibile spostarlo. Utilizzare lo strumento Sposta rapidamente per selezionare un componente o un numero di filo e farlo scorrere avanti e indietro su un filo mantenendo tutto connesso. È possibile selezionare un filo o un intero rung di circuiteria e spostarlo rapidamente in una nuova posizione. Se vi sono componenti principali tra gli elementi spostati rapidamente, viene richiesto se si desidera ricontrassegnare tali componenti spostati rapidamente.
Lo strumento Sposta rapidamente può essere eseguito su numeri di fili, componenti, morsetti, moduli I/O PLC, tratti di linee di collegamento tratteggiate, frecce di segnale, fili e fili con anelli di intersezione.

Spostamento rapido di un componente


. Trova
Selezionare componente, filo o numero del filo per SPOSTAMENTO RAPIDO:
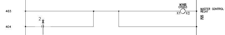
Selezionare il componente precedentemente inserito in corrispondenza del riferimento linea 403
Il cursore si trasforma in un riquadro.
Selezionare componente, filo o numero del filo per SPOSTAMENTO RAPIDO: a
Spostare il cursore a destra, quindi fare clic. Fare clic con il pulsante destro del mouse per uscire dal comando.
Il componente verrà spostato nella nuova posizione.

È possibile utilizzare lo strumento Sposta rapidamente per prendere un componente o un numero di filo e farlo scorrere avanti e indietro su un filo. È possibile prendere un filo o un intero rung di circuiteria e spostarlo rapidamente in una nuova posizione mantenendo il tutto connesso.
I passaggi per inserire un componente principale e uno secondario sono identici, tranne nel caso in cui viene annotato il simbolo.
Inserimento di un componente secondario


. Trova
Specificare punto di inserimento:
Posizionare il cursore sul filo presso il riferimento linea 404 accanto al filo con carico e fare clic (1)

Viene visualizzata la finestra di dialogo Inserisci/Modifica componente secondario. Set di strumenti di AutoCAD Electrical non ha assegnato automaticamente un nome di contrassegno per il contatto relè; nella casella di modifica è presente solo l'indicazione "CR" generica. Stabilire il nome di contrassegno per il contatto relè. Un contatto relè è un componente secondario che deve essere collegato ad una bobina di commutazione principale in un disegno all'interno del progetto attivo. Il componente secondario ha lo stesso nome di contrassegno utilizzato nella bobina di commutazione principale.
Assegnare il nome di contrassegno facendo clic su Principale/Pari livello e selezionando il componente principale nel disegno. Oppure, fare clic su Disegno o Progetto per effettuare la selezione da un elenco di componenti con lo stesso nome famiglia.
MCAB5 CR403 RELÈ DI CONTROLLO PRINCIPALE

I valori del componente principale vengono trasferiti immediatamente al contatto.
Contrassegno componente: CR403
Descrizione: Linea 1: RELÈ DI CONTROLLO
Descrizione: Linea 2: RELÈ
Riferimento incrociato: 403
Codice posizione: MCAB5
Pin: Pin 1: A1X
Pin: Pin 2: A1Y

Viene inserito il componente secondario e viene creato un riferimento incrociato in tempo reale. La bobina principale viene annotata con il numero di riferimento linea del nuovo contatto secondario. Il componente secondario viene annotato con la posizione di riferimento linea della bobina principale.
