Questo metodo consente di posizionare un vano in aree complesse il cui volume è vincolato da un livello di base a un livello superiore.
È possibile utilizzare questo metodo per il posizionamento di vani in aree che si estendono su più livelli, aree con il livello superiore a sbalzo o aree in cui una parte del limite superiore è un loft. In questi casi, è possibile utilizzare linee di delimitazione dei vani o livelli aggiuntivi per dividere le aree.
Nel Browser di progetto, fare doppio clic sulla pianta del pavimento contenente il livello di base per l'area che si estende su più livelli.
Creare quindi una vista di sezione per verificarne i vani verticalmente durante il posizionamento.
Suggerimento: I vani non vengono visualizzati nelle viste di prospetto.
Creazione di viste di sezione
È possibile utilizzare una vista di sezione esistente, ma verificare che la linea di sezione intersechi l'area in cui si posizioneranno i vani.
- Fare clic sulla scheda Vista
gruppo Crea
(Sezione).
- Nella vista della pianta del pavimento, disegnare 2 sezioni perpendicolari nella pianta del pavimento come mostrato nell'illustrazione.
Verificare che la linea di sezione intersechi l'area in cui si sta posizionando il vano. In caso contrario, il vano non verrà visualizzato nella vista di sezione.
- Nel Browser di progetto, fare doppio clic sulla nuova vista di sezione per aprirla.
Creazione di livelli
In questo argomento si presuppone che i livelli standard siano già stati creati. Se i livelli non esistono, è necessario crearli.
- Fare clic su Modifica.
Dividere l'area utilizzando le linee di delimitazione dei vani
- Fare clic sulla pianta del pavimento di modo che sia quella attiva.
- Fare clic sulla scheda Analizza
gruppo Vani e zone
(Separatore vani) e disegnare un separatore di vani per dividere l'area in base ai diversi limiti superiori.
Nota: Le linee di delimitazione dei vani sono componenti di delimitazione del locale.
- Nel Browser di progetto, aprire entrambe le viste di sezione.
- Chiudere tutte le viste, ad eccezione delle 2 viste di sezione e di pianta del pavimento in cui si desidera posizionare il vano e digitare w t sulla tastiera per affiancare le 3 viste.
È anche possibile fare clic sulla scheda Vista
gruppo Finestre
(Viste affiancate).
Attivazione della visibilità dei vani
- Fare clic in una vista di sezione di modo che sia quella attiva.
- Digitare v g sulla tastiera.
- Nella scheda Categorie del modello della finestra di dialogo Visibilità/Grafica, scorrere fino ad individuare la voce Vani.
- Espandere Vani, selezionare Interno e Riferimento (se si desidera visualizzare i puntatori a croce di riferimento) e fare clic su OK.
- Ripetere la procedura per rendere visibili i vani nell'altra vista di sezione e nella pianta del pavimento.
Posizionamento di un vano
- Con la vista di pianta del pavimento attiva, fare clic sulla scheda Analizza
gruppo Vani e zone
(Vano).
- Nella barra delle opzioni:
- In Limite superiore, selezionare il livello superiore.
Quando si specifica il limite superiore di un vano sotto un tetto, specificare il limite superiore sul livello che si trova al di sopra del tetto di modo che venga eseguito lo snap del vano al tetto. Se tale livello non esiste, crearlo. Vedere Posizionamento di vani fino al tetto.
- In Offset, immettere 0' 0" (0.00 mm).
Queste due opzioni specificano l'estensione verticale o l'altezza del vano.
Nota: Se il limite e l'offset superiori vengono specificati oltre il livello superiore, verrà eseguito lo snap del contorno verticale del vano a un componente di delimitazione del locale, come un controsoffitto o un pavimento, anche se il limite superiore si trova più in alto rispetto al componente di delimitazione del locale. Ciò avviene in quanto con l'opzione Aree e volumi selezionata (impostazione di default), viene eseguito lo snap del contorno verticale del vano ai componenti di delimitazione del locale, quali controsoffitti, pavimenti o tetti. Il volume del vano viene calcolato fino al componente di delimitazione del locale. L'opzione Aree e volumi si trova nella scheda Architetto

gruppo Locali e aree

Calcolo aree e volumi.
- Nella casella Vano, verificare che sia selezionato Nuovo se si posiziona un nuovo vano, oppure selezionare un vano non posizionato dall'elenco per posizionarlo.
Selezionare le opzioni seguenti in base alle esigenze:
- Etichetta al posizionamento: posiziona un'etichetta di vano durante il posizionamento del vano.
L'opzione Etichetta al posizionamento è selezionata per default. Se tale opzione è selezionata, è possibile scegliere il tipo di etichetta nel Selettore di tipo.
- La casella Etichetta include le opzioni Orizzontale, Verticale o Modello per la posizione dell'etichetta del vano.
È disponibile solo se l'opzione Etichetta al posizionamento è selezionata.
- Direttrice: crea una linea direttrice per l'etichetta del vano.
È disponibile solo se l'opzione Etichetta al posizionamento è selezionata.
- Mostra elementi di delimitazione: evidenzia gli elementi di delimitazione del locale nel modello di edificio per il riconoscimento immediato.
- Nella vista della pianta del pavimento, spostare il cursore su un'area del modello di edificio, quindi fare clic per posizionare un vano.
Nota: I vani possono essere posizionati solo nelle viste di pianta del pavimento.
- Fare clic su Modifica.
- Selezionare il vano.
- Nella tavolozza Proprietà, in Analisi energetica, effettuare una delle seguenti operazioni:
- Selezionare Abitabile, se il vano verrà occupato.
- Deselezionare Abitabile, se il vano non verrà occupato.
- Fare clic su OK.
Nota: Se si posiziona un vano in un'area che include un locale, il parametro Abitabile viene automaticamente selezionato. Lo spazio viene quindi definito come abitabile. Se l'area non include un locale, il parametro Abitabile viene automaticamente deselezionato. Il vano viene quindi definito come non abitabile. È sempre possibile ridefinire il vano selezionando o deselezionando tale parametro. Il parametro Abitabile influisce sull'
analisi del sistema.
Verifica dei vani
- Nelle viste di sezione e della pianta del pavimento, verificare che le aree ombreggiate che rappresentano il volume dei vani siano vincolate dal livello di base al livello superiore, e che non vi siano aree non ombreggiate (dovute a incassi o cavedii). In questo modo si otterrà un calcolo del volume più preciso.
- Se il vano non è vincolato come specificato, nella vista di sezione verificare che il limite superiore del vano sia specificato sul livello superiore, quindi ridefinire lo spazio verticalmente, se necessario.
È inoltre necessario risolvere tutte le aree non ombreggiate.
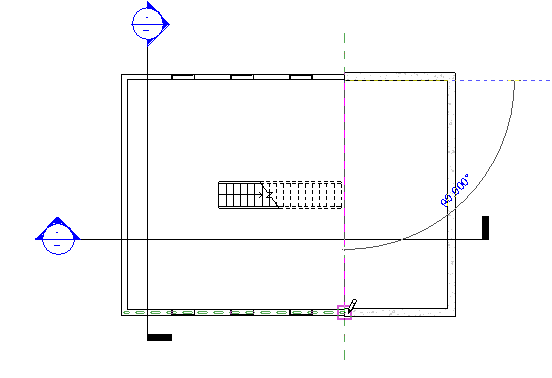
Altri vani complessi possono essere divisi utilizzando le linee di delimitazione dei vani o livelli come mostrato nell'illustrazione.
Esempio a sinistra: un livello divide l'area in senso orizzontale. Nell'area inferiore, la base è Level 1 e il relativo livello superiore è Level 2. Viene specificato un secondo vano la cui base è Level 2 e il limite superiore è il livello Roof Top.
Esempio a destra: una linea di delimitazione dei vani divide l'area in senso verticale. La base dell'area inferiore è Livello 1 e il limite superiore è il livello Roof Top. Per il vano 2, la base è Level 2 e il limite superiore è il livello Roof Top.