コンポーネントを配線に沿ってスクートし、子コンポーネントを挿入します。
正しい位置にコンポーネントが挿入されなかった場合、コンポーネントをスクートできます。[スクート]ツールを使用してコンポーネントや線番を選択し、すべての接続を維持したまま、配線の位置を移動します。配線や回路の横線全体を選択し、新しい位置にスクートできます。スクートされた項目に親コンポーネントがある場合は、スクートされたコンポーネントのタグを付け直すかどうか尋ねられます。
[スクート]ツールは、線番、コンポーネント、端子、PLC I/O モジュール、連結破線のジョグ、渡り線の矢印、配線、および配線交差点のループを含む配線について実行できます。

コンポーネントをスクートする


の順にクリックします。 検索
スクートするコンポーネント、配線、または線番を選択:
ライン リファレンス 403 に挿入したコンポーネントを選択します。
カーソルがボックスに変化します。
スクートするコンポーネント、配線、または線番を選択: 次の点
カーソルを右に動かしてクリックし、右クリックしてコマンドを終了します。
コンポーネントが新しい位置に移動します。

[スクート]ツールを使ってコンポーネントや線番を指定し、配線に沿って移動することもできます。配線や回路の横線全体を指定すると、それぞれの接続関係を維持したままスクートすることができます。
親コンポーネントと子コンポーネントを挿入する手順は同じですが、シンボルに注釈を付ける場合は異なります。
子コンポーネントを挿入する


の順にクリックします。 検索
挿入点を指定:
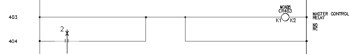
左側の母線に近いライン リファレンス 404 の配線にカーソルを移動して、クリックします(1)。

[子コンポーネントを挿入/編集]ダイアログ ボックスが表示されます。AutoCAD Electrical ツールセット では、リレー接点のタグ名は自動的に割り当てられません。編集ボックスには汎用の「CR」が表示されます。リレー接点のタグ名を決定します。リレー接点は、アクティブなプロジェクトの図面で、親リレー コイルに連結する必要がある子コンポーネントです。子は、親リレー コイルで見つかった同じタグ名が設定されます。
[親/子]をクリックして図面の親を選択し、タグ名を割り当てます。または、[図面]または[プロジェクト]をクリックして、同じファミリ名を持つコンポーネントのリストから選択します。
MCAB5 CR403 MASTER CONTROL RELAY

親の値は、すぐに接点に転送されます。
[コンポーネント タグ] CR403
[説明]: 1 行目: マスター コントロール
[説明]: 2 行目: リレー
[クロスリファレンス]: 403
[ロケーション コード] MCAB5
[ピン]: ピン 1 A1X
[ピン]: ピン 2 A1Y

子コンポーネントが挿入されます。リアル タイムでクロスリファレンスが設定されます。コイルには、新しい子接点のライン リファレンス番号が注釈として付加されます。子接点には、親コイルのライン リファレンス位置が注釈として付加されます。
