消しゴム(削除)やクロップのコマンドを使用すると、モノクロ イメージ、グレースケール イメージ、およびカラー イメージの指定した領域を削除することができます。削除とクロップでは、イメージが永久的に変更されます。
-
消しゴムは、除去したピクセルをイメージの現在の透明色に変更します。イメージの背景の透過性がオンに設定されている場合、削除で消去された領域は透明になります。イメージ データを消しゴムで消去するには、[ラスター ツール]タブ
[編集]パネルをクリックし、[削除]ドロップダウン メニューからオプションの 1 つを選択するか、次のコマンドの 1 つを入力します: iremove、irubarc、irubcirc、irubcircle、irubdiag、irubline、irubpline、irubpoly、または irubrect。
-
クロップは、選択した境界領域の外側のピクセル データを削除します。クロップ境界が長方形でない場合は、クロップ境界と長方形のイメージ フレーム間の領域は透明色で塗り潰されます。イメージ データをクロップするには、[ラスター ツール]タブ
[編集]パネルをクリックし、[クロップ]ドロップダウン メニューからオプションの 1 つを選択するか、次のコマンドの 1 つを入力します: icropcirc、icropdiag、icropline、icroppoly、または icroprect。
削除とクロップの境界は、円形、長方形、線分、円弧、ポリゴンなど、さまざまな形状から成ります。境界は、1 度に複数のイメージを取り囲むことができます。クロップされた建築平面図のように、イメージをクロップすると、イメージ フレームのサイズが自動的に調整されます。
|
|
|
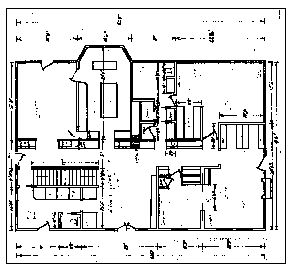
元の建築平面図のイメージ
|
建築平面図から削除コマンドで削除された領域
|
クロップされた建築平面図
|
削除とクロップのキーポイントは、次のとおりです。
- 2 つのイメージが重なっているときに、表示されているイメージを削除で消去する、またはクロップすると両方のイメージが変更されます。イメージ フレームが存在する画層をロックすると、イメージが不用意に修正されるのを防ぐことができます。
- 削除とクロップは、削除またはクロップ領域に存在するベクトルには影響しません。このコマンドはラスター データにのみ影響します。
- 削除は、イメージの背景の透過性の状態に応じて、透明または塗り潰し領域を作成します。
- クロップは、クロップ境界と交差しているイメージのみに影響します。この境界の外側にあるイメージには何の影響もありません。
- autorub[自動消しゴム]コマンドを使用すると、削除/クロップの線幅を設定することができます。また、自動消しゴムのオン/オフを切り替えることができます。