他の要素によって隠されるモデル要素と詳細要素を現在のビューで表示するには、[要素単位で隠線表示]ツールを使用します。
[要素単位で隠線表示]ツールでは、現在のビューの個々の要素のグラフィック表示を変更できます。このツールは、カテゴリに[隠線処理]サブカテゴリを持つ要素に対して使用することができます。
注: 次のビューに対しては、[要素単位で隠線表示]ツールを使用できません。
- パース ビュー。
- [隠線表示]パラメータが[すべて]または[なし]に設定されているビュー。([専門分野別]に設定する必要があります)。
- リンク モデルの要素。
- [専門分野]パラメータが[電気]、[機械]、または[給排水衛生設備]に設定されているビュー。
たとえば、南立面図に玄関があり、その玄関の外枠を北立面図で隠線処理を使用して表示します。
- 隠されている要素の隠線を表示するビューを開きます。
- (必要な場合)プロパティ パレットにビュー プロパティを表示するには、ビュー内の空白エリアを右クリックし、[プロパティ]をクリックします。
- プロパティ パレットで、[隠線表示]の<専門分野別>を選択します。
注: [要素単位で隠線表示]ツールを使用して指定した隠線は、[隠線表示]パラメータが[専門分野別]に設定されている場合にのみ表示されます。
- ビュー コントロール バーで、[表示スタイル: ワイヤフレーム]をクリックします。
ワイヤフレームのスタイルを使用すると、表示する非表示要素を選択できます。
- [表示]タブ
[グラフィックス]パネル 
(要素単位で隠線を表示する)をクリックします。
- (省略可能)複数の要素の隠線を表示するには、オプション バーで[複数選択]を選択します。
- 対象の要素を隠している要素を選択します。
- 隠されている要素を 1 つまたは複数選択します。
- ビュー コントロール バーで、[表示スタイル]に[ワイヤフレーム]以外のスタイルを選択します。
これらの要素の非表示のエッジおよび線分が、隠線として表示されます。
- (省略可能)このツールの効果を元に戻すには、表示スタイルを[ワイヤフレーム]に変更し、[ビュー]タブ
[グラフィックス]パネル 
(要素単位で隠線を非表示)をクリックします。
次に、対象の要素を隠している要素を選択し、隠されている要素を選択して、表示スタイルを再度変更します。
- [修正]をクリックし、[隠線処理]ツールを終了します。
プロジェクト全体での隠線の表示に使用するスタイルを変更するには、[オブジェクト スタイル]ダイアログを使用します。
このビューの隠線の表示に使用するスタイルのみを変更するには、[表示/グラフィックス]ダイアログを使用します。
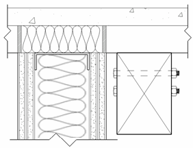
例: 詳細コンポーネントの隠線を表示
次の例は、[要素単位で隠線を表示]を使用し、4x6 スタッドとボルトを選択した後の結果を示しています。1 つのボルトの隠線は表示され、2 番目のボルトの線分は隠されています。

注: オブジェクトは適切な並びで配置されている必要があります。4x6 スタッドの上部にあるボルトの線分を非表示にすることはできません。ボルトを隠すには、最初に 4x6 スタッドの背面に位置づけておかなくてはなりません。ボルトを隠線として表示するには、4x6 スタッドを選択してからボルトを選択します。