パート 2: 壁を作成する

この練習では、異なるレベルで作業して、プロジェクトに外壁、内壁および廊下を追加します。

カテゴリ 新規ユーザ
所要時間 15 分
使用するチュートリアル ファイル GSG_02_Create_Walls.rvt

作業を開始する前に、GSG_02_Create_Walls.rvt データ ファイルをダウンロードします。この zip ファイルをダウンロードします(チュートリアル用の練習ファイルをまだダウンロードしていない場合)。

目標

ビデオを見る

外壁を作成する

  1. GSG_02_Create_Walls.rvt のプロジェクトを開きます。
    注: 作業を分かりやすくするために、データ セットには通芯が追加されています。通芯の追加に関する詳細は、「通芯を追加する」を参照してください。
  2. [プロジェクト ブラウザ]の[平面図]で[00 - Foundation]をダブルクリックして、作図領域でビューを開きます。
  3. [建築]タブ [構築]パネル (壁)をクリックします。
  4. プロパティ パレットで、[タイプ セレクタ]ドロップダウン リストをクリックし、[標準壁 Exterior - Render on Brick on Block]を選択します。
  5. オプション バーで、次のようにします。
    • [高さ]に[03 - Lower Parapet]を選択します。
    • [配置基準線]で[仕上げ面: 外部]を選択します。
    • [連結]がオンになっていることを確認します。
  6. [修正 | 配置 壁]タブ [描画]パネル (線分)をクリックします。
  7. 作図領域の点 1 を開始位置にして壁を描画し、点 18 で終了させます。壁をもう 1 つ 18 から 1 に向かって追加します。

    これらの点は、特定の位置に壁を描画しやすくするためにプロジェクトに追加されています。

    注: 壁の配置にしたがって、マウスのスクロール ホイールを使用して拡大および縮小の表示や、画面移動します。
  8. [Esc]キーを押して、壁ツールを終了します。
  9. [表示]タブ [作成]パネル (既定の 3D ビュー)をクリックします。

外壁を修正する

  1. 3D ビューで作業しながら、建物のコーナーの壁を選択します。囲み窓の選択を使用して、[Ctrl]キーを押しながら選択に壁を追加します。
  2. プロパティ パレットの[上部レベル]で、[04 - Upper Parapet]を選択して[適用]をクリックします。
    1. 壁の選択を解除するには、[Esc]キーを押します。
  3. 建物の正面右コーナーにある 2 つの壁を選択します。プロパティ パレットで[基準レベル オフセット]を「4250 mm」に設定します。
  4. タイプ セレクタで、壁タイプを[Exterior - Render on Brick on Block @ Entry]に変更します。

内壁を追加する

  1. [プロジェクト ブラウザ]の[平面図]で[01 - Store Floor]をダブルクリックします。
  2. [建築]タブ [構築]パネル (壁)をクリックします。
  3. タイプ セレクタで[Interior - 138mm Partition (1- hr)]を選択します
  4. オプション バーで、次のようにします。
    • [高さ]に[03 Lower Parapet]を選択します。
    • [配置基準線]で[壁の中心線]を選択します。
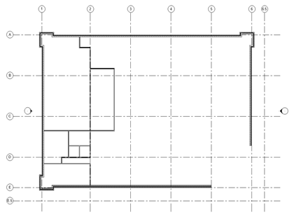
  5. 次のイメージをガイドとして使用して、内壁を配置して部屋を作成します。
    • 正確な配置は重要ではありません。
    • 壁をレイアウトするときに[連結]オプションを使用すると便利な場合があります。[連結]を使用すると、複数の壁を終端同士で配置することができます。[連結]を無効した場合は、各壁の両方の端点を指定する必要があります。両方の設定を試してください。
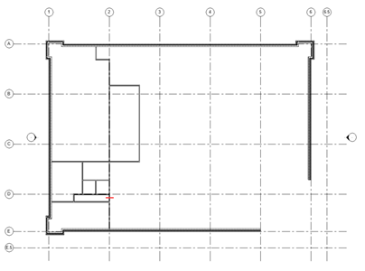
  6. 壁を修正して、廊下を作成します。
    • [修正]タブ [修正]パネル (要素を分割)をクリックします。
    • 前のイメージで短い赤い線で示されている場所の壁をクリックします。
    • [修正]パネルで (コーナーへトリム/延長)をクリックします。
    • 分割壁をトリムして、次のように廊下を作成します。
      注: Revit でトリムするときは、保持する要素の部分を選択します。
  7. (修正)をクリックし、コマンドを完了します。

パート 3: 地面と建築舗装を作成する