Revit のジェネレーティブ デザインを使用してシートをレイアウトする

ジェネレーティブ デザインを使用して、シート レイアウトの検討を自動化します。

この記事は、John Pierson 氏が投稿した Dynamo ブログの投稿から転載したものです。

ビューのパッケージ化

ジェネレーティブ デザインは、設計者が Revit 内で日常的なタスクを実行する際に役立ちます。その 1 つは、シートのレイアウト作業です。Generative Design Primer (ジェネレーティブ デザインの解説書)には、フィードバック ループを使用してシート上にできる限り多くのビューをパッケージ化する例が記載されています。ただし、Revit ユーザの多くはシート上で必要なビューのタイプについては精通しており、シート レイアウトを検討するためのさらに便利な方法を求めています。

この「お試しください」の記事では、ジェネレーティブ デザインを使用してシートをレイアウトする、設計者に役立つ方法を紹介します。

ビデオ

このビデオでは、ジェネレーティブ デザインを使用してシートのレイアウトを作成する方法について簡単に説明します。このビデオでは、サンプルのスタディ タイプが既に設定されています。下にスクロールして、手順を段階ごとに確認してください。

ビデオ提供: John Pierson氏

シートを設定する

この例では、rac_advanced_sample_project.rvt というサンプル モデルを使用します。サンプル プロジェクトは Revit で使用できます。こちらからもダウンロードできますのでご利用ください。

この例のスタディ タイプ(Dynamo グラフ)である Packing Viewports はこちらからダウンロードします。

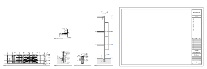
  1. サンプル モデル rac_advanced_sample_project.rvt を開き、シート A2 - Sections に移動します。
  2. 配置するビューを横にドラッグ アンド ドロップします。こうすることで、ジェネレーティブ デザインで配置できるようになります。

Sheet A2 in the sample model, with views moved to the side

スタディ タイプを設定する

次に、スタディ タイプの Packing Viewports を使用して、ジェネレーティブ デザイン スタディを作成します。まず、[スタディを作成]ダイアログでスタディ タイプを使用できるようにします。

[管理] [ジェネレーティブ デザイン]パネル [スタディを作成]の順に選択します。

注: または、[管理] [Dynamo] メイン メニューの[ジェネレーティブ デザイン] [スタディを作成]の順に選択して、ダイアログにアクセスします。

DYN ファイルと Dependencies フォルダが含まれている Packing Viewports フォルダを他のスタディ タイプと同じ場所に保存していた場合は、スタディ タイプの 1 つとして packedViews が[スタディを作成]ダイアログに表示されます。

このスタディ タイプが表示されない場合は、次の手順に従います。

  1. [フォルダを選択]ドロップダウン メニューの横にある Add folder icon [フォルダを追加]を選択します。
  2. [+]アイコンをクリックし、Packing Vieports グラフ フォルダが配置されているパスにナビゲートします。このフォルダには、DYN ファイルと Dependencies フォルダの両方が含まれています。
  3. フォルダ パスを追加したら、[フォルダを管理]ダイアログ ボックスを閉じます。

スタディを定義する

Packed Views スタディ タイプを使用してスタディを作成できるようになりました。

  1. [スタディを作成]ダイアログ ボックスで、[フォルダを選択]ドロップダウンまたはスタディ タイプのリストから packedViews を選択します。
  2. [方法]ドロップダウンで、方法を[ランダム]に変更します。
  3. ダイアログの右上隅にある Study options icon スタディ オプション メニューをクリックし、[既定の設定を保存]を選択します。
  4. [生成]をクリックします。ジェネレーティブ デザインで成果を作成するには、しばらく時間がかかる場合があります。

成果を検討する

[成果を検討]ダイアログに、多数の成果が表示されます。成果を選択するとイメージが大きく表示され、回転させたり拡大/縮小して詳細を確認できます。ビューポート名が、各オプションのレイアウト状態を示すプレビューに表示されます。

サンプル シートでは、合計 5 つのビューを使用できます。[成果を検討]ダイアログの下中央にある平行座標チャートで、フィルタを使用してシート上のビューの数を選択できます。フィルタを使用するには、チャートの軸(垂直線)をクリックして、線に沿ってドラッグします。

Revit で成果を表示するには、次のように操作します。

  1. 目的の成果を選択して、[Revit 要素を作成]をクリックします。これにより、選択したシート レイアウトが Revit で作成されます。
  2. [成果を検討]ダイアログ ボックスを最小化するか、横に移動させて Revit モデルが見えるようにします。
  3. 別のオプションを試すには、[元に戻す] ([Ctrl]+[Z])を選択してレイアウトをリセットします。
  4. [成果を検討]ダイアログに戻り、別のオプションを選択して、もう一度[Revit 要素を作成]をクリックします。それに応じてシート レイアウトが更新されます。

Sheet layout option in the Explore Outcomes dialog and the same option generated in Revit

ビューを追加する

シートにさらにビューを追加する場合は、新しいスタディを作成します。スタディ タイプと設定が既に定義されている場合、このプロセスは迅速かつ簡単です。

  1. シートに必要なビューを追加します。
  2. 新しいスタディを作成します。左下隅の[スタディを作成]を選択して、[成果を検討]ダイアログから直接スタディを作成できます。
  3. packedViews スタディ タイプを選択します。設定は以前に保存した設定が既定として使用されますが、別のシートを選択するなど、必要に応じて変更できます。
  4. [生成]をクリックします。

前のセクションと同様に、さまざまなレイアウト オプションを確認して試してみましょう。ビューが多すぎてシートに収まらない場合は、フィルタを使用して配置するビューの数を指定できます。この制限を超えたビューは、シートの横に配置されます。

ジェネレーティブ デザインを使用すると、シート レイアウトの検討で面倒な作業を排除できます。ぜひお試しください。記事の評価とフィードバックをコメント ボックスからぜひお寄せください。