수축포장 해치 정보

수축포장 해치 구성요소는 단면선으로 절단된 모든 객체 면의 결합을 해치합니다. 수축포장 해치는 외부 또는 내부 수축포장 선 구성요소로 정의됩니다. 이 구성요소는 2D 단면에만 해당됩니다.

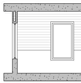
수축포장 상세에서 제외된 유리를 가진 수축포장 해치

수축포장 해치 구성요소는 재료 구성요소에 의해 정의될 수 없습니다.

주: 수축포장 해치 및 단면 해치 구성요소는 서로 중첩됩니다. 따라서 같은 위치에 서로 다른 두 개의 해치가 나타납니다. 이런 충돌을 피하려면, 수축포장 해치에 대한 솔리드 해치를 지정하거나 또는 수축포장 및 단면 해치 구성요소를 동시에 사용하지 마십시오.