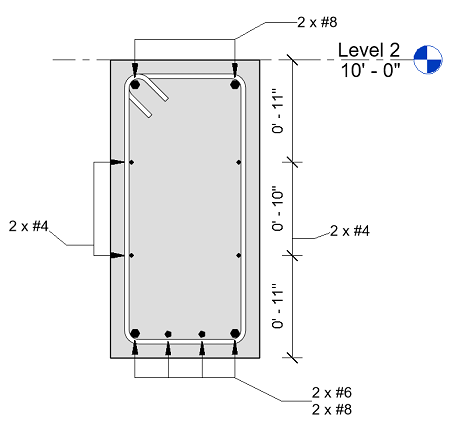
다중 보강 철근 주석

단일 주석으로 다중 보강 철근 및 보강 철근 세트에 태그를 지정합니다.

비디오: 다중 보강 철근 주석



다중 보강 철근 주석을 사용하면 보강 철근 호스트와 관련된 매개변수 데이터와 배치뿐 아니라, 여러 개의 정렬된 보강 철근을 선택하고 보강 철근 참조 사이의 치수를 표시할 수 있습니다.