뷰 범위는 평면 뷰에서 객체의 가시성 및 화면표시를 제어하는 일련의 수평 기준면입니다.
모든 평면 뷰에는 뷰 범위(가시 범위라고도 함)라는 특성이 있습니다. 뷰 범위를 정의하는 수평 기준면은 상단, 절단 기준면 및 하단입니다. 상단 및 하단 자르기 기준면은 뷰 범위의 최상단 및 최하단 위치를 나타냅니다. 절단 기준면은 뷰의 특정 요소가 절단으로 표시되는 높이를 결정하는 기준면입니다. 이 세 기준면이 뷰 범위의 1차 범위를 정의합니다.
뷰 깊이는 1차 범위 밖의 추가 기준면입니다. 하단 자르기 기준면 아래에 요소를 표시할 뷰 깊이를 변경합니다. 기본적으로 뷰 깊이는 하단 자르기 기준면과 일치합니다.
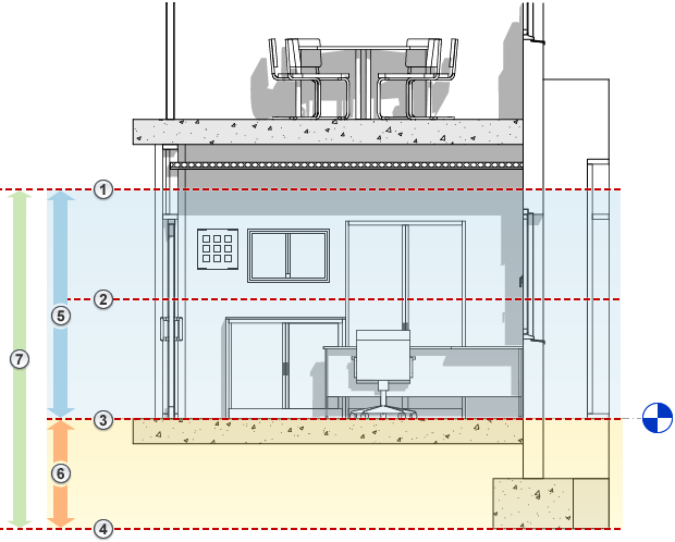
다음 입면도는
평면 뷰: 상단
, 절단 기준면
, 하단
, 간격띄우기(하단에서),
1차 범위
및 뷰 깊이
의 뷰 범위를 나타냅니다.
오른쪽의 평면 뷰는 이 뷰 범위에 대한 결과를 보여줍니다.
|
|
평면 뷰에서 Revit LT은 다음 규칙을 사용하여 절단 기준면과 교차하는 요소를 표시합니다.
절단 기준면과 교차한 요소의 화면표시는 다음과 같은 경우에 예외입니다.
경계 상자 상단에서부터 1차 뷰 범위 하단까지 측정되는 거리는 6피트(또는 2미터)입니다. 예를 들어, 상단이 하단 자르기 기준면에서 6피트 위인 벽을 작성할 경우 벽은 절단 기준면에서 절단됩니다. 벽의 상단이 6피트가 되지 않으면 전체 벽은 절단 기준면을 교차하는 투영으로 표시됩니다. 이 동작은 벽에 대한 상단 구속조건 특성이 미연결로 지정되어 있는 경우 항상 발생합니다. 벽의 상단 구속조건 특성이 연결됨으로 지정된 경우 절단 기준면 위치는 항상 벽을 자를 것인지 아니면 투영할 것인지 정의하는 데 사용됩니다.
팁: 패밀리에는 절단 기준면과 교차하는 형상이 포함될 수 있으므로 절단 기준면 위에 있는 형상이 표시될 수 있습니다.
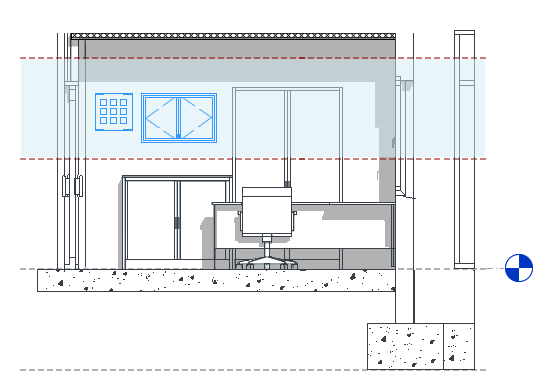
다음 입면도에서 파랑 하이라이트는 절단 기준면과 교차하는 요소를 나타냅니다.
오른쪽의 평면 뷰는 다음 사항을 표시합니다.
절단 선 두께를 사용하여 그려진 요소(벽, 문 및 창)이빈다.
절단 불가능하므로 투영 선 두께를 사용하여 그려진 요소(케이스워크)입니다.
|
|
평면 뷰에서 Revit LT은 요소 카테고리의 투영 선 두께를 사용하여 이러한 요소를 그립니다.
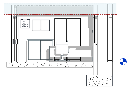
다음 입면도에서 파랑 하이라이트는 절단 기준면 아래 및 하단 자르기 기준면 위에 있는 요소를 나타냅니다.
오른쪽의 평면 뷰는 다음 사항을 표시합니다.
절단 기준면과 교차하지 않기 때문에 투영 선 두께를 사용하여 그려진 요소(캐비닛, 책상 및 의자)입니다.
|
|
뷰 깊이 내에 있는 요소는 요소의 카테고리와 상관없이 <범위를 넘어서> 선 스타일을 사용하여 그려집니다.
예외: 뷰 범위 외부에 있는 바닥, 구조 바닥, 계단 및 경사로에서는 1차 범위 바닥에서 4피트(약 1.22m) 아래에 있는 조정된 범위를 사용합니다. 이 조정된 범위 내에서 요소는 카테고리에 대한 투영 선 두께를 사용하여 그려집니다. 요소가 이 조정된 범위 밖에 있지만 뷰 깊이 내에 있을 경우 이 요소는 <범위를 넘어서> 선 스타일을 사용하여 그려집니다.
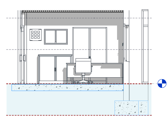
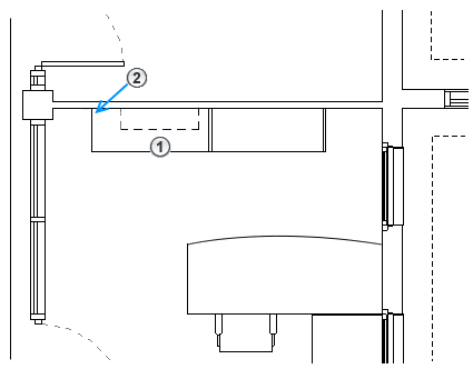
예를 들어, 다음 입면도에서 파랑 하이라이트는 하단 자르기 기준면 아래 및 뷰 깊이 내에 발생하는 요소를 나타냅니다.
오른쪽의 평면 뷰는 다음 사항을 표시합니다.
<범위를 넘어서> 선 스타일을 사용하여 그려진 뷰 깊이 내에 있는 요소(기초)입니다.
예외 조건을 충족하기 때문에 카테고리에 대해 투영 선 두께를 사용하여 그려진 요소입니다.
|
|
카테고리가 창, 케이스워크 및 일반 모델이 아닌 경우 이러한 요소는 평면 뷰에 표시되지 않습니다. 이러한 세 가지 카테고리의 요소는 위에서 본 대로 투영 선 두께를 사용하여 그려집니다.
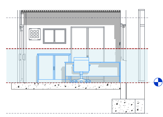
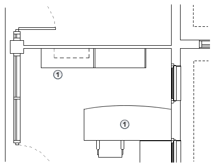
예를 들어, 다음 입면도에서 파랑 하이라이트는 뷰 범위의 상단과 절단 기준면 사이에 발생하는 요소를 나타냅니다.
오른쪽의 평면 뷰는 다음 사항을 표시합니다.
투영 선 두께를 사용하여 그려진 벽 장착 케이스워크입니다. 이 경우에는 투영 선에 대한 대시 선 스타일이 케이스워크 패밀리에서 정의됩니다.
카테고리가 창, 케이스워크 또는 일반 모델이 아니므로 평면에 그려지지 않는 벽 촛대(조명 카테고리)입니다.
|
|
평면도와 마찬가지로 반사된 천장 평면도에도 뷰 범위 설정이 있지만 약간의 차이가 있습니다.
