다른 CAD 프로그램에서 드래프팅 뷰 가져오기

다른 CAD 프로그램에서 뷰를 가져오고 Revit 드래프팅 뷰로 사용할 수 있습니다. 그런 다음 콜아웃 또는 단면에 대한 드래프팅 뷰를 참조하고 시방서 세트의 시트에 배치할 수 있습니다.

  1. 뷰 탭작성 패널(드래프팅 뷰)를 클릭합니다.
  2. 새 드래프팅 뷰의 이름과 해당 축척을 입력합니다.
  3. 삽입 탭가져오기 패널(CAD 가져오기)를 클릭합니다.
  4. 상세 및 CAD 형식을 선택합니다.
  5. 상세 뷰에 있는 경우 현재 뷰만 옵션을 선택합니다.
    주: 드래프팅 뷰에 있는 경우에는 자동으로 선택됩니다.
  6. 열기를 클릭하여 CAD 상세를 배치합니다.
  7. 시트에 이 뷰를 끌어다 놓습니다.
  8. 콜아웃 또는 단면을 배치할 때 이 뷰를 참조합니다.

가져온 드래프팅 뷰의 건축 예제

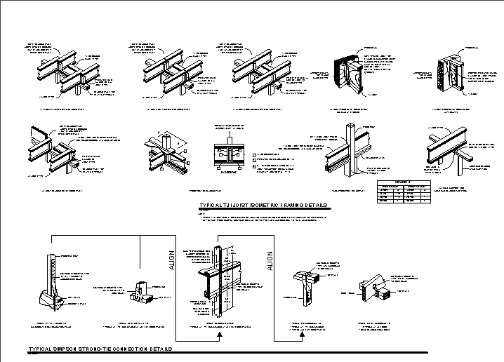
가져온 드래프팅 뷰의 구조 예제