Aby utworzyć wiele rzutni obszaru modelu
- Kliknij kolejno

strzałkę menu rozwijanego Konfiguracje rzutni.
- Kliknij konfigurację rzutni, którą chcesz użyć.
Wskazówka:
Elementy sterujące rzutnią są wyświetlane w lewym górnym rogu każdej rzutni, co może wyglądać następująco:
[-] [Góra] [model szkieletowy 2D]
Kliknij element sterujący - lub +, a następnie pozycję Lista konfiguracji rzutni, aby zmienić liczbę i układ rzutni.
Jeśli podczas przeciągania obwiedni rzutni będzie wciśnięty klawisz CTRL, zostanie wyświetlony zielony pasek podziału i będzie można utworzyć nowe rzutnie. Można także przeciągnąć skrajne kontrolki podziału.
Aby ustawić rzutnię obszaru modelu jako bieżącą
- Kliknij w obrębie obwiedni rzutni.
Aby cyklicznie przełączać rzutnię bez klikania
- Naciskaj klawisze CTRL+R wielokrotnie.
Aby zresetować obszar modelu do pojedynczej rzutni
- Kliknij

Rzutnie
Lista konfiguracji rzutni
Pojedynczo.
Aby połączyć dwie rzutnie obszaru modelu
Uwaga: Dwie rzutnie można połączyć, jeśli mają wspólną krawędź tej samej długości.
- Kliknij

Rzutnie, Dołącz.
- Kliknij w rzutni obszaru modelu, która ma zostać zachowana.
- Kliknij wewnątrz sąsiedniej rzutni, która ma być połączona z pierwszą rzutnią.
Wskazówka: Można również przeciągnąć obwiednię wewnętrzną dowolnej rzutni obszaru modelu, łącząc ją z inną rzutnią mającą wspólną krawędź o tej samej długości.
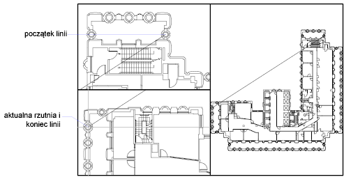
Aby narysować przez dwie rzutnie obszaru modelu
W dużym rysunku można wykorzystać tę metodę do narysowania linii od szczegółu w jednym narożniku do szczegółu w odległym narożniku.
- Rozpocznij linię w bieżącej rzutni.
- Ustaw inną rzutnię jako bieżącą, klikając wewnątrz niej, a następnie określ drugi punkt końcowy linii.