Dla obliczeń belek—ścian według polskiej normy żelbetowej, poza typowym zbrojeniem poziomym oraz pionowym, istnieje możliwość generacji dodatkowych stref zbrojenia w pobliżu podpór oraz w obszarach przyłożenia obciążeń skupionych (na zadanej powierzchni rozkładu lub w punkcie). Podejście takie pozwala na bezpieczne przeniesienie naprężeń podlegających znacznym koncentracjom we wspomnianych obszarach. Sposób, w jaki program automatycznie generuje strefy dodatkowe oraz zbrojenie w nich, jest następujący:
Na poniższych rysunkach przedstawione zostały schematy definicji takich stref.
Belka—ściana podparta na słupach, jednoprzęsłowa

Wartości w nawiasach podano dla h ≥ 2l.
Belka—ściana podparta na słupach, wieloprzęsłowa, dla h ≥ l/2

Wartości w nawiasach podano dla h ≥ l.
Belka—ściana podparta na słupach, wieloprzęsłowa, dla h < l/2

W przypadku belek—ścian opartych za pośrednictwem pilastrów stosowane są powyższe reguły jak dla oparcia na słupach.
Belka—ściana utwierdzona (jednakowe wymiary strefy zbrojenia poziomego oraz pionowego)

Wartość w nawiasach podano dla h ≥ ln, gdzie ln oznacza rozpiętość w świetle podpór.
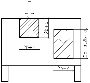
Wymiary strefy zbrojenia w obszarze przyłożenia siły skupionej są określane według poniższego schematu.

Oznaczenia na rysunku:
a — szerokość rozkładu obciążenia (zdefiniowana wraz z wartością siły)
b — grubość belki—ściany.
Jednocześnie, wymiar takiej strefy musi być większy od 1 metra.