Przejrzyj inne przykłady procesu roboczego wymiarowania akcesoriów montażowych w widokach rysunków warsztatowych prefabrykatów.
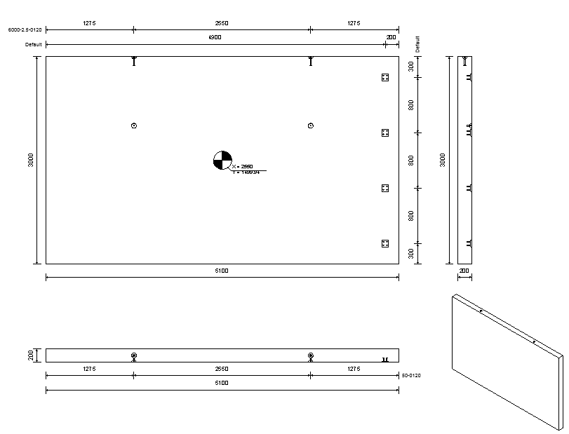
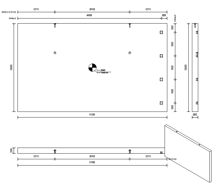
Wymiary wszystkich akcesoriów montażowych z tej samej rodziny zostaną umieszczone na jednej linii, jeśli akcesoria montażowe są umieszczone po tej samej stronie obiektu nadrzędnego. Odniesieniem dla tego umieszczenia jest środek elementu. Wszystkie akcesoria montażowe o takiej samej nazwie rodziny, które znajdują się nad środkiem elementu nadrzędnego, zostaną zwymiarowane nad tym elementem. Akcesoria montażowe znajdujące się pod środkiem zostaną zwymiarowane pod elementem. Ta sama reguła odnosi się do pionowych linii wymiarowych. Do linii wymiarowej obok punktów wymiarowych akcesoriów montażowych są dodawane punkty wymiarowe na zakresie elementu nadrzędnego (jeden punkt lewy i prawy lub górny i dolny).



panel Segmentacja
(Podziel).
panel Połączenia
(Akcesoria montażowe), aby dodać płytki kotwiące do zespołu.
panel Produkcja
(Rysunki warsztatowe), aby utworzyć rysunek warsztatowy dla zespołu.

Na podstawie nazwy podkategorii linie wymiarowe powinny być tworzone tylko podczas wyświetlania płytek kotwiących z góry (tak jak przedstawiono w rodzinie). W przypadku ściany w tym przykładzie ma to miejsce tylko w widoku z przodu.


Ustaw podkategorię i parametr widoczności tak jak w pierwszym przykładzie.
panel Segmentacja
(Podziel).
panel Połączenia
(Akcesoria montażowe), aby dodać płytki kotwiące do zespołu.
panel Produkcja
(Rysunki warsztatowe), aby utworzyć rysunek warsztatowy dla zespołu.

panel Produkcja
(Rysunki warsztatowe), aby utworzyć rysunek warsztatowy dla zespołu.

Zakres płytek kotwiących jest wymiarowany we wszystkich widokach (przy użyciu jednego wymiaru, ponieważ zawsze jest to ta sama rodzina).
W widokach z przodu i z góry wymiarowana jest tylko płytka (bez kotew), ponieważ w tych widokach widoczne są tylko zaokrąglone powierzchnie kotew, nie ma więc odniesień umożliwiających wymiarowanie.


panel Segmentacja
(Podziel).
panel Produkcja
(Rysunki warsztatowe), aby utworzyć rysunek warsztatowy dla zespołu.
