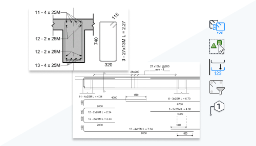
Dodaj szczegóły gięcia do rysunków zbrojenia w celu utworzenia dokładnych instrukcji gięcia prętów i instalacji.
Szczegóły gięcia można umieszczać w rzutach, przekrojach i widokach elewacji, wewnątrz lub na zewnątrz zakresu przycięcia widoku, używając dedykowanych narzędzi na wstążce. Zmień parametry szczegółów gięcia zbrojenia, aby najlepiej dopasować je do potrzeb w zakresie rysunków zbrojenia.

Tę funkcję zasugerowali klienci na forum pomysłów. Opisano ją w planie rozwoju produktu.
Zobacz temat Szczegóły gięcia zbrojenia na rysunkach zbrojenia.