Widoki szczegółu umożliwiają dodanie dalszych informacji do określonych części modelu.
Karta Widokpanel Utwórz (Odwołanie)
Karta Widokpanel Utwórz (Przekrój)
Tematy w tej sekcji
Informacje o widokach szczegółu
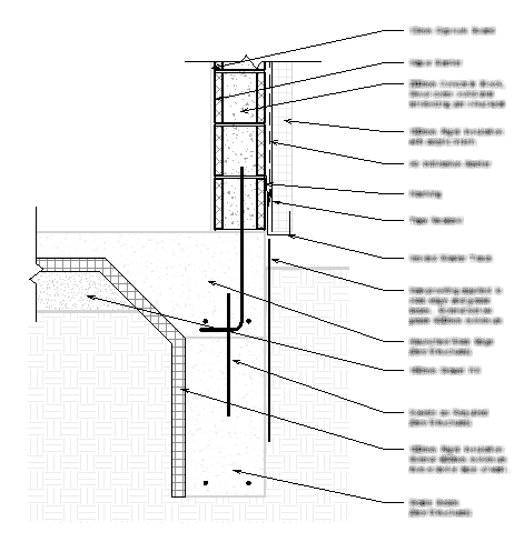
Widok szczegółu jest widokiem modelu pojawiającym się jako odwołanie lub przekrój w innych widokach. Ten typ widoku najczęściej reprezentuje model w dokładniejszych skalach szczegółu niż w widoku nadrzędnym.
Tworzenie widoku szczegółu
Odwołanie można utworzyć z widoku rzutu, przekroju lub elewacji, a następnie dodać komponenty szczegółu, używając geometrii modelu jako podstawy. Przy tworzeniu odwołania lub szczegółu przekroju można tworzyć odniesienie do innego widoku kreślarskiego lub szczegółu w modelu.
Powielanie widoku szczegółu
Podczas powielania widoku można określić, czy zarówno geometria modelu, jak i geometria szczegółu są kopiowane do nowego widoku.
Powielanie widoków
Powielając widoki w modelu, można prezentować różne rodzaje informacji.
Zapisywanie widoku w projekcie zewnętrznym
Można zapisać widok w projekcie zewnętrznym programu Revit LT. Ta operacja pozwoli zapisać w nowym pliku projektu widok i wszystkie elementy (modelu i charakterystyczne dla widoku) występujące w tym widoku.