Para obter mais informações, consulte Para definir as pilhas de tolerância.
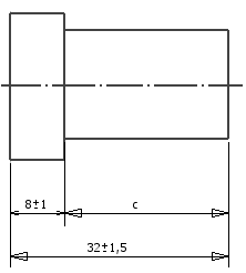
Obtenha as equações básicas para cadeias de cotas lineares fechadas na imagem a seguir.
![]()
a = 32 ± 1.5 mm, b = 8 ± 1 mm

Elementos crescentes/decrescentes
Se o elemento crescente aumenta, o elemento de fechamento também aumenta. Se o elemento decrescente aumenta, o elemento de fechamento diminui, se outros elementos da cadeia permanecerem constantes.
Em geral, as tolerâncias da cadeia linear satisfazem a seguinte equação.
![]()
De forma análoga, as equações 2 e 3 podem ser escritas em uma forma geral.
![]()
![]()
O limite de cota superior do elemento de fechamento é igual à diferença da soma dos limites de cota superiores dos elementos crescentes e a soma dos limites de cota inferiores dos elementos decrescentes.
O limite de cota inferior do elemento de fechamento equivale à diferença da soma dos limites de cota inferiores dos elementos crescentes e a soma dos limites de cota superiores dos elementos decrescentes.
A cota nominal do elemento de fechamento pode ser expressada mediante a equação 1, tal como é exibida na equação a seguir.
![]()
Desvio do limite superior do elemento de fechamento.
![]()
Limite de desvio inferior do elemento de fechamento.
![]()