Neste exercício, você vai completar o interior do modelo ao adicionar uma escada para o mezanino no nível inferior e, em seguida, modificar o corrimão no mezanino.
|
Categoria
|
Novos usuários
|
|
Tempo necessário
|
15 minutos
|
|
Arquivos de tutorial usados
|
GSG_09_stairs_railings.rvt
|
|
Antes de começar, faça o download do arquivo GSG_09_stairs_railings.rvt. Faça o download deste arquivo zip (se você ainda não tiver feito o download dos arquivos de exercícios para os tutoriais).
Objetivos
- Criar uma escada entre o piso da loja e o mezanino.
- Modificar o corrimão da escada para incluir o mezanino.
- Alterar o tipo de corrimão para um corrimão tubular.
Assista ao vídeo
Criar escadas
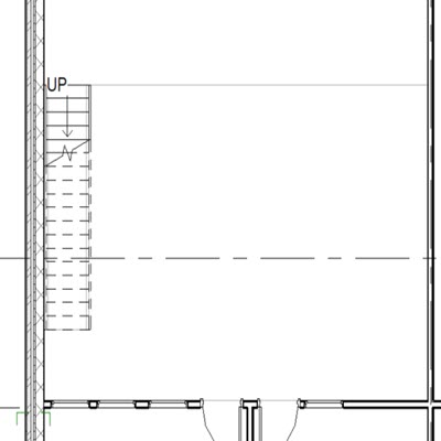
- Abra o projeto GSG_09_stairs_railings.rvt.
- Verifique se a planta de piso 01 – Piso da loja está aberta.
- Guia Arquitetura
painel Circulação
(Escada).
- Na paleta Propriedades, em Restrições:
- Para Nível base, selecione 01 – Piso da loja.
- Para Nível superior, selecione Mezanino.
- Na barra de opções, defina a linha de localização como Lance: Esquerdo.
- No ambiente da loja, clique no canto da subjacência do mezanino para iniciar o lance da escada.
- Mova o cursor para baixo até que a dica de ferramenta indique que nenhum (0) espelho de degrau permanece e clique para especificar o ponto final da escada.
- No painel Modo, clique em
(Concluir modo de edição).
Modificar o tipo de guarda-corpo
- Na barra de ferramentas de acesso rápido, clique em
(Vista 3D padrão).
- Selecione o telhado plano e, em seguida, use
(Ocultar/Isolar temporário) na Barra de controles da vista e selecione Ocultar elemento.
- Selecione o corrimão no lado da escada próximo à parede.
- No Seletor de tipos, selecione Parede de tubulação de 900 mm.
- Clique em Excluir tipo na caixa de diálogo de aviso.
- Selecione o corrimão no outro lado da escada.
- No Seletor de tipos, selecione Tubulação de 900 mm.
Parte 1: Criar vistas