Crie, anote e efetue o ajuste fino na documentação do projeto para comunicar a intenção do projeto aos membros da equipe, consultores, clientes e empreiteiros.
Vídeo: Ajustar uma vista em perspectiva
Ajuste uma vista em perspectiva após ela ter sido criada usando um dos três métodos: manipulação direta, uso do SteeringWheel ou uso do modo de sobrevoo.
Vídeo: Trabalhar em uma vista em perspectiva
Ao trabalhar em uma vista 3D ortogonal ou uma vista em perspectiva, você pode adicionar e modificar os elementos de construção para desenvolver e efetuar o ajuste fino do projeto.
Vídeo: Selecionar campos para uma tabela
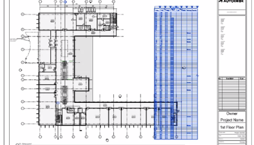
Ao criar uma tabela, selecione os campos a serem incluídos usando a guia Campos da caixa de diálogo Propriedades da tabela.
Vídeo: Filtrar uma tabela por folha
Neste tutorial, você aprenderá a filtrar elementos em uma tabela com base nas vistas inseridas na mesma folha que a tabela.
Vídeo: Calcular totais em uma tabela
Ao criar uma tabela, calcule e exiba as quantidades e os custos totais dos elementos ou um custo total de todos os elementos.
Vídeo: Criar uma tabela incorporada
Use tabelas incorporadas para exibir informações sobre os componentes em ambientes, espaços, sistemas de duto, sistemas de tubulação ou categorias de circuitos elétricos.
Vídeo: Combinar parâmetros em uma tabela
Ao criar ou modificar uma tabela, combine duas ou mais parâmetros em uma única célula da tabela usando a caixa de diálogo Propriedades da tabela.
Vídeo: Criar um bloco de notas
Adicione um bloco de notas (tabela de anotações) para criar folhas de notas numeradas genéricas em um modelo.
Vídeo: Personalizar os modelos de tabela de painéis
Gerencie os modelos de painel de tabela para criar tabelas de painéis personalizadas que estejam em conformidade com as normas de sua empresa e os regulamentos locais.
Vídeo: Criar e usar listas de folhas
Use as listas de folhas para tabular as folhas no projeto e pré-preencher folhas na lista como marcadores de posição.
Vídeo: Exportar uma animação de percurso virtual
Para apresentar o modelo a clientes e a membros da equipe, exporte um percurso virtual para um vídeo (arquivo AVI) ou para uma série de imagens.
Vídeo: Imprimir
Configure uma impressora e modifique as configurações para imprimir suas vistas e folhas.
Vídeo: Dividir uma tabela entre folhas
Use a guia Modificar tabelas/quantidades para modificar a aparência de uma tabela e as informações que ela exibe.
Vídeo: Controlar as linhas ocultas
Use a ferramenta Mostrar linhas ocultas e visualize os parâmetros para controlar as linhas ocultas nas vistas do modelo.
Vídeo: Simulação de profundidade
Crie o efeito de profundidade fazendo com que os objetos mesclem com a cor do plano de fundo com o aumento da distância do visualizador.
Vídeo: Linhas de croqui
Use linhas de croqui para dar ao seu trabalho uma aparência desenhada à mão.
Vídeo: Criar e documentar montagens
Combine vários elementos em uma única montagem que pode ser programada, identificada e filtrada de forma independente.