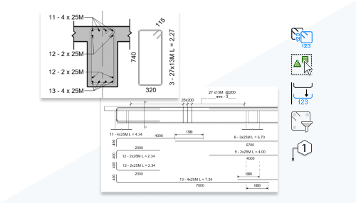
Adicione detalhes da curvatura aos desenhos de armadura para criar instruções precisas de curvatura e instalação de barras.
É possível posicionar detalhes da curvatura em vistas de planta, corte e elevação, dentro ou fora da região de recorte da vista usando as ferramentas dedicadas na faixa de opções. Modifique os parâmetros dos detalhes da curvatura de vergalhão para melhor atender às suas necessidades do desenho de armadura.

Esse recurso foi sugerido pelos clientes no Fórum de ideias e é descrito no roteiro de produtos.
Consulte Detalhes da curvatura de vergalhão em desenhos de armadura.