Neste exercício, você vai trabalhar em diferentes níveis para adicionar paredes externas, paredes internas e uma obra linear ao projeto.
|
Categoria
|
Novos usuários
|
|
Tempo necessário
|
15 minutos
|
|
Arquivos de tutorial usados
|
GSG_02_Create_Walls.rvt
|
|
Antes de começar, faça o download do arquivo de dados GSG_02_Create_Walls.rvt. Faça o download desse arquivo zip (se você ainda não tiver feito o download dos arquivos de exercícios para os tutoriais).
Objetivos
- Adicionar paredes externas desenhando-as usando os pontos selecionados.
- Adicionar paredes internas para o nível inferior com a ferramenta Parede.
- Usar a ferramenta Aparar/Estender para criar uma abertura para um corredor.
Assista ao vídeo
Modificar paredes externas
- Ao trabalhar na vista 3D, selecione as paredes nos cantos da construção. Use uma seleção que contenha uma janela e mantenha pressionada a tecla CTRL para adicionar paredes à seleção.
- Na paleta Propriedades, para Restrição superior, selecione 04 – Parapeito superior e clique em Aplicar.
- Pressione Esc para desmarcar as paredes.
- Selecione as duas paredes no canto direito frontal da construção. Na paleta Propriedades, defina o Deslocamento da base como 4.250 mm.
- No Seletor de tipos, altere o tipo de parede para Exterior – Reboco em tijolo no bloco em Entrada.
Adicionar paredes internas
- No Navegador de projeto, em Plantas de piso, clique duas vezes em 01 – Piso da loja.
- Clique na guia Arquitetura
painel Construção
(Parede).
- No Seletor de tipos, selecione Interior – Divisória de 138 mm (1- hr).
- Na barra de opções:
- Para Altura, selecione 03 – Parapeito inferior.
- Para Linha de localização, selecione Linha central da parede.
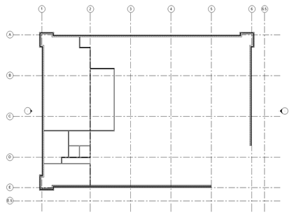
- Usando a imagem a seguir como guia, coloque as paredes internas para criar ambientes.
- A colocação exata não é essencial.
- Ao criar o layout das paredes, pode ser útil ativar ou desativar a opção Cadeia. A opção Cadeia permite inserir várias paredes de uma extremidade à outra. Com a opção Cadeia desativada, ambas as extremidades de cada parede devem ser especificadas. Experimente com as duas configurações.
- Modificar paredes para criar um corredor:
- Clique em
(Modificar) para completar o comando.
Parte 3: Criar um terreno e uma plataforma de construção