Examine temporariamente a cota e as restrições de alinhamento em uma vista, para solucionar ou modificar elementos no modelo.
- Na Barra de controle de vista, clique em
(Revelar restrições).
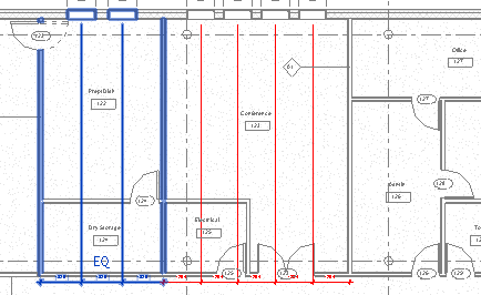
A área de desenho Revelar restrições exibe uma borda colorida para indicar que você está no modo Revelar restrições. Todas as restrições são exibidas em cor e os elementos do modelo são exibidos em meio-tom (cinza).
Nota: Para tornar mais fácil visualizar as restrições neste modo, certifique-se de que a opção Exibir linhas finas não esteja selecionada (guia Vista

painel Gráficos


Linhas finas).
- Selecione uma restrição para realçar os elementos que estão restringidos.
No exemplo a seguir, a restrição na esquerda é selecionada, e as 2 paredes e 2 janelas que estão restringidas também são realçadas.
- Opcional: remova a restrição bastando excluir ou bloquear a mesma.
Nota: As restrições que foram adicionados no modo de croqui para um elemento são exibidos em cor de meio-tom. Clique duas vezes no elemento para entrar no modo de croqui para alterar ou remover a restrição.
- Na Barra de controle de vista, clique em
para sair do modo Revelar restrições.