Быстрое перемещение компонента вдоль провода и вставка дочерних компонентов.
Если компонент не был вставлен в правильное местоположение, можно воспользоваться быстрым перемещением компонента. Инструмент быстрого перемещения служит для выбора компонента или номера провода и сдвига его в любом направлении вдоль провода с сохранением соединений. Можно выбрать провод или все звено схемы и быстро переместить его в новое положение. Если среди перемещаемых элементов имеются родительские компоненты, будет выдан запрос, не требуется ли переназначить позиционные обозначения для быстро перемещаемых компонентов.
Инструмент "Быстрое перемещение" работает с номерами проводов, компонентами, клеммами, модулями ввода/вывода ПЛК, изломами на пунктирных линиях связи, стрелками цепей, проводами и проводами с петлями пересечения проводов.

Быстрое перемещение компонента


. найти
Выберите компонент, провод или номер провода для операции БЫСТРОЕ ПЕРЕМЕЩЕНИЕ:
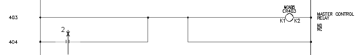
Выберите компонент, вставленный на линии с номером 403
Курсор изменяет свой вид на прямоугольник.
Выберите компонент, провод или номер провода для операции БЫСТРОЕ ПЕРЕМЕЩЕНИЕ: куда
Переместите курсор вправо и нажмите кнопку мыши; щелкните правой кнопкой мыши для выхода из команды
Компонент перемещается на новое место.

Можно использовать инструмент "Быстрое перемещение" для выбора компонента или номера провода и перемещения его в любом направлении вдоль провода. Можно выбрать провод или все звено схемы и "быстро переместить" его в новое положение, сохранив все соединения.
Содержание этапов вставки родительского и дочернего компонента одинаково, кроме стадии аннотирования графического образа.
Вставка дочернего компонента


. найти
Точка вставки:
Установите курсор на проводе у линейной ссылки 404 рядом с проводом под напряжением и нажмите кнопку мыши (1)

Открывается диалоговое окно "Вставка/Редактирование дочернего компонента". Обратите внимание на то, что Инструментарий AutoCAD Electrical не назначает имя позиционного обозначения для контакта реле автоматически; в поле для ввода проставлено только обобщенное CR. Определите имя позиционного обозначения контакта реле. Контакт реле является дочерним компонентом, который должен быть связан с катушкой реле на чертеже в активном проекте. Для дочернего компонента задается то же имя поизционного обозначения, что и у родительского компонента-катушки реле.
Для назначения имени позиционного обозначения щелкните "Родит./Равн" и выберите родительский компонент в чертеже. Или щелкните "Чертеж" или "Проект2" для выбора в списке компонентов с тем же именем семейства.
MCAB5 CR403 ЦЕНТРАЛЬНЫЙ ПУЛЬТ УПРАВЛЕНИЯ

Значения из родительского компонента сразу же передаются в контакт.
Позиционное обозначение компонента: CR403
Описание, строка 1: ГЛАВНЫЙ ПУЛЬТ УПРАВЛЕНИЯ
Описание, строка 2: РЕЛЕ
Перекрестная ссылка: 403
Код месторасположения: MCAB5
Выводы, вывод 1: A1X
Выводы, вывод 2: A1Y

Дочерний компонент вставлен. К нему можно в реальном времени обратиться по перекрестной ссылке. Аннотация катушки содержит номер линейной ссылки на новый дочерний контакт. В аннотации дочернего компонента приводится место с номером линии родительского компонента-катушки.
