Для добавления проводов между соединителями используются инструменты "Вставить провод" и "Многопроводная шина".
Символ ACAD-E 1 подразумевает крупный компонент, например блок питания. Символы ACAD-E 2 -4 представляют собой более мелкие компоненты, являющиеся частью блока питания. Компоненты должны быть соединены между собой проводами. Простейший способ выполнения этой операции — использование инструментов "Вставить провод" и "Многопроводная шина".
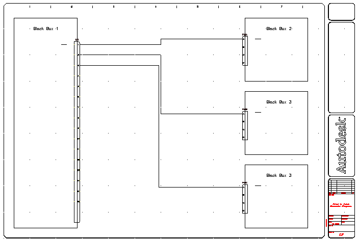
Связь соединителей проводами


. найти
Укажите начало провода или [Тип провода/Ч = показать соединения]:
Щелкните PJ1 у вывода 1 на символе ACAD-E 1
Укажите конец провода или [Продолжить]: Щелкните PJ2 у вывода A на символе ACAD-E 2

Обратите внимание на то, что инструмент "Вставить провод" прорисовывает провод между соединителями, обходя существующую на экране геометрию.

. найти
Интервал по горизонтали: 0.75
Интервал по вертикали: 0.50
Начать с: Компонент (несколько проводов)

Выбор точек начала соединений проводов с помощью рамки:
Выберите выводы 5-7 Символа ACAD-E 1 (1) и щелкните правой кнопкой мыши
До (T= тип провода):
Перетащите провода вправо за три вставленных провода.
До точки (Продолжить/Отразить):
Дотяните провода до PJ2 на Символе ACAD-E 2, введите П и нажмите Enter (для продолжения операции и фиксации текущего места)
До (Продолжить/Отразить):
Протяните провода вправо и соедините с выводами B-D на PJ2 (2)


. найти
Выбор точек начала соединений проводов с помощью рамки:
Выберите выводы 9-11 Символа ACAD-E 1 (1) и щелкните правой кнопкой мыши
До (T= тип провода):
Перетащите провода вправо.
До точки (Продолжить/Отразить):
Дотяните провода до PJ3 на Символе ACAD-E 3, введите П и нажмите Enter(для продолжения операции и фиксации текущего места)
До (Продолжить/Отразить):
Протяните провода вправо и соедините с выводами B-D на PJ3

. найти
Выбор точек начала соединений проводов с помощью рамки:
Выберите выводы 13–15 на Символе ACAD-E 1 и нажмитеEnter
До (T= тип провода):
Перетащите провода вправо.
До точки (Продолжить/Отразить):
Протяните провода вверх до PJ4 на Символе ACAD-E 4, введите П и нажмите Enter (для продолжения операции и фиксации текущего места)
До (Продолжить/Отразить):
Протяните провода вправо и соедините с выводами B-D на PJ4
