Дополнительную информацию см. в разделе «Определение наложений допусков».
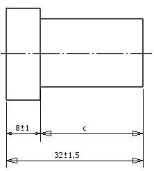
Базовые формулы для замкнутых размерных цепей можно получить из следующей иллюстрации.
![]()
a = 32 ± 1.5 мм, b = 8 ± 1 мм

Элементы с положительным и отрицательным знаками
Если элемент с положительным знаком увеличивается, замыкающий цепь элемент также увеличивается. Если элемент с отрицательным знаком увеличивается, замыкающий цепь элемент уменьшается (если остальные элементы цепи остаются постоянными).
Вообще говоря, допуски в цепи линейных размеров подчиняются следующему выражению.
![]()
Аналогично, выражения 2 и 3 можно переписать в обобщенной форме.
![]()
![]()
Верхнее предельное значение замыкающего элемента является результатом вычитания суммы нижних предельных размеров элементов с отрицательным знаком из суммы верхних предельных размеров элементов с положительным знаком.
Нижнее предельное значение замыкающего элемента является результатом вычитания суммы верхних предельных размеров элементов с отрицательным знаком из суммы нижних предельных размеров элементов с положительным знаком
Номинальный размер замыкающего элемента определяется согласно выражению 1, как в следующей записи.
![]()
Верхнее предельное отклонение замыкающего элемента.
![]()
Нижнее предельное отклонение замыкающего элемента.
![]()